Maison neuve à
Saint-Yrieix-sur-Charente
(16710) Référence :
JB2447904_2
Prix du projet : Maison avec Terrain
prix 437 800 €
- 6 pièces
- 4 chambres
- Surface maison 165 m2
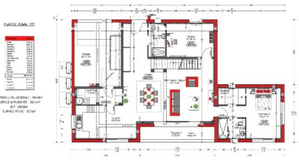
maison d'exception de 165 m² à Saint-Yrieix - Architecture & Confort Absolu
Nous vous proposons la réalisation d'une maison contemporaine de 165 m², conçue pour une clientèle exigeante en quête de grands volumes et de prestations haut de gamme.
Un espace de vie tres confortable :
L'entrée s'ouvre sur une pièce de réception baignée de lumière de plus de 60m², avec de larges baies vitrées à galandage ouvrant sur votre futur jardin. Une cuisine de standing avec cellier attenant complète cet espace convivial.
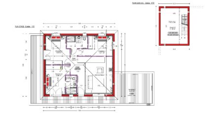
Espace Nuit & Travail :
Suite Parentale : Une aile dédiée avec chambre spacieuse, grand dressing aménagé et salle d'eau privative au rdc.
Le confort pour tous : 3 autres chambres généreuses, dont une seconde suite avec salle d'eau, et une salle de bain familiale indépendante. Au total, 3 salles de bain pour une fluidité quotidienne parfaite.
Télétravail & Sérénité : Un véritable bureau isolé des pièces de vie, idéal pour une activité professionnelle à domicile.
Garage spacieux : De plus de 30 m² pour abriter vos véhicules et équipements.
Architecture : Lignes épurées, matériaux nobles et finitions personnalisables.
L'emplacement :
Situé dans un secteur calme et résidentiel de Saint-Yrieix, vous profitez de la proximité immédiate du Plan d'Eau et de l'accès direct aux pôles d'activité d'Angoulême, tout en conservant une intimité totale.
N'hesitez pas à contacter l'agence ALPHA CONSTRUCTIONS ( jeremy bruneau
tel: O678371534) pour tout renseignement complémentaire
Mentions légales
Terrain proposé par un partenaire foncier selon disponibilité dans le cadre d’un projet de construction avec Alpha Constructions. Les descriptions, photographies, surfaces et prix illustrant l’annonce sont fournies à titre indicatif et ne sont pas contractuels. Non soumis au DPE. Différents modèles disponibles.Agence Alpha Constructions de Cognac (16100)
- Téléphone :
- 05 17 22 82 53
- Adressse :
- 20 Place Bayard
16100 Cognac, France