Maison neuve à
Sainte-Foy
(85150) Référence :
NR2258580_2
Prix du projet : Maison avec Terrain
prix 224 900 €
- 2 pièces
- 2 chambres
- Surface maison 61 m2
********** A SEULEMENT 20 MINUTES DES SABLES D'OLONNE ***********
VENTE : maison de 2 pièces (61 m²) à Sainte-Foy
EMPLACEMENT PRIVILÉGIÉ - MAISON 2 PIÈCES NEUVE
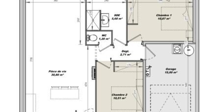
À 11 km de la côte atlantique et à deux pas de La Roche-sur-Yon, nous vous présentons cette maison de 2 pièces de plain-pied de 61 m² et de 385 m² de terrain bénéficiant d'un emplacement d'exception dans Sainte-Foy (85150). Son intérieur offre deux chambres, une cuisine et une salle de bains.
Cette maison est neuve.
La maison se situe dans un quartier prisé. On trouve l'École Primaire Publique du Marronnier et l'École Primaire Privée Saint-Joseph à moins de 10 minutes à pied et une crèche. Côté transports en commun, il y a trois gares (La Mothe-Achard, Olonne-sur-Mer et Les Sables-d'Olonne) à moins de 10 minutes en voiture. L'autoroute A87 est accessible à 17 km. On trouve un tennis, une boulangerie, un commerce et une supérette dans les environs.
Elle est à vendre pour la somme de 224 900 €.
N'hésitez pas à prendre contact avec notre agence (Nicolas RISSELIN : 06-80-33-03-82) pour tout renseignement sur la propriété ou sur les modalités de vente.
********** A SEULEMENT 20 MINUTES DES SABLES D'OLONNE ***********
Mentions légales
Terrain proposé par un partenaire foncier selon disponibilités et autorisation de publicité au prix de 93 100 €. Hors droit d'enregistrement et frais de notaire. Maison proposée, avec un contrat de construction de maison individuelle, dans le cadre de la loi du 19/12/1990, au prix de 131 800 € (Hors branchements et raccordements, papiers peints, peintures, revêtement de sol dans les chambres, qui sont chiffrés dans les travaux qui restent à charge du client. Tarif modifiable sans préavis). Étiquette énergie : A. Différents modèles disponibles pour ce terrain. Assurances et garanties du constructeur comprises (RC professionnelle, décennale, dommage ouvrage).Agence Logis du Marais Poitevin de Saint-Gilles-Croix-de-Vie (85800)
- Téléphone :
- 02 51 55 34 29
- Adressse :
- 5 rue Gautté
85800 Saint-Gilles-Croix-de-Vie, France
