Maison neuve à
Saintes
(17100) Référence :
PD2222411_1
Prix du projet : Maison avec Terrain
prix 332 585 €
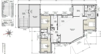
- 5 pièces
- 3 chambres
- Surface maison 130 m2
Maison de 5 pièces (130 m²) à vendre à 9 km de Saintes à La Chapelle des Pots
EMPLACEMENT PRIVILÉGIÉ - MAISON 5 PIÈCES NEUVE
À vendre : à 34 km de la côte atlantique, nous sommes heureux de vous présenter cette maison de 5 pièces de plain-pied de 130 m² et de 779 m² de terrain, bénéficiant d'un emplacement privilégié à quelques km de Saintes Saintes (17100).
Son intérieur se divise en trois chambres, une cuisine et deux salles de bains.
La maison est située dans un quartier convoité. Il y a des établissements scolaires de tous types (de la maternelle au lycée) à moins de 10 minutes à pied.
Niveau transports, on trouve la gare Saintes à moins de 10 minutes en voiture. L'autoroute A10 et les nationales N137, N141 et N150 sont accessibles à moins de 3 km.
Il y a un tennis, des boulangeries, des commerces, deux supermarchés, quatre épiceries et un bureau de poste dans les environs. Boulangerie et primeur à 4 km.
Elle est à vendre pour la somme de 332 585 €.
Prenez contact avec Pascal DECOU (06-46-75-16-45) pour toute information sur la maison ou sur les modalités de vente.
Bermax Construction Saintes est là pour vous accompagner dans toutes vos démarches.
Mentions légales
Terrain proposé par un partenaire foncier selon disponibilités et autorisation de publicité au prix de 52 500 €. Hors droit d'enregistrement et frais de notaire. Maison proposée, avec un contrat de construction de maison individuelle, dans le cadre de la loi du 19/12/1990, au prix de 280 085 € (Hors branchements et raccordements, papiers peints, peintures, revêtement de sol dans les chambres, qui sont chiffrés dans les travaux qui restent à charge du client. Tarif modifiable sans préavis). Étiquette énergie : A. Différents modèles disponibles pour ce terrain. Assurances et garanties du constructeur comprises (RC professionnelle, décennale, dommage ouvrage).Agence Bermax de Saintes (17100)
- Téléphone :
- 05 46 91 55 26
- Adressse :
- 1 impasse de la recouvrance
17100 Saintes, France
