Maison neuve à
Saintes
(17100) Référence :
PD2228111_2
Prix du projet : Maison avec Terrain
prix 401 256 €
- 5 pièces
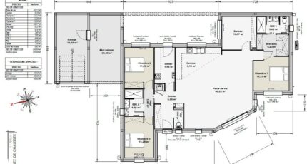
- 3 chambres
- Surface maison 130 m2
Maison F5 (130 m²) à Saintes
IDÉALEMENT SITUÉE - MAISON 5 PIÈCES NEUVE
À vendre : à 34 km de la côte atlantique, notre agence Bermax Construction Saintes est ravie de vous présenter cette maison de 5 pièces de plain-pied de 130 m², idéalement située dans Saintes (17100).
Elle comporte trois chambres, une cuisine et deux salles de bains.
Le terrain du bien est de 850 m².
La propriété est située dans un secteur attractif.
On trouve des écoles du primaire et du secondaire à moins de 10 minutes.
Côté transports, il y a la gare Saintes à moins de 10 minutes en voiture. L'autoroute A10 et les nationales N137, N141 et N150 sont accessibles à moins de 3 km.
On trouve un tennis, des boulangeries, des commerces, deux supermarchés, deux supérettes et quatre épiceries à proximité. Proche hypermarché Cours Maréchal LECLERC SAINTES
Elle est à vendre pour la somme de 401 256 €.
N'hésitez pas à prendre contact avec notre agence (Pascal DECOU : 06-46-75-16-45) pour toute question sur la maison, sur les démarches à suivre ou sur les modalités de vente.
Bermax Construction Saintes vous accompagne dans tous vos projets immobiliers et à toutes les étapes de l'achat.
Mentions légales
Terrain proposé par un partenaire foncier selon disponibilités et autorisation de publicité au prix de 119 000 €. Hors droit d'enregistrement et frais de notaire. Maison proposée, avec un contrat de construction de maison individuelle, dans le cadre de la loi du 19/12/1990, au prix de 282 256 € (Hors branchements et raccordements, papiers peints, peintures, revêtement de sol dans les chambres, qui sont chiffrés dans les travaux qui restent à charge du client. Tarif modifiable sans préavis). Étiquette énergie : A. Différents modèles disponibles pour ce terrain. Assurances et garanties du constructeur comprises (RC professionnelle, décennale, dommage ouvrage).Agence Bermax de Saintes (17100)
- Téléphone :
- 05 46 91 55 26
- Adressse :
- 1 impasse de la recouvrance
17100 Saintes, France
