Maison neuve à
Saintes
(17100) Référence :
LR2488207_5
Prix du projet : Maison avec Terrain
prix 220 000 €
- 5 pièces
- 3 chambres
- Surface maison 90 m2
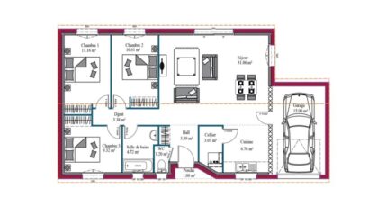
Maison T5 (90 m²) en vente à Saintes
PROCHE CENTRE-VILLE - MAISON 5 PIÈCES NEUVE
À vendre : à 34 km de l'océan Atlantique, nous vous proposons, proche du centre-ville de Saintes (17100), cette maison de 5 pièces de plain-pied de 90 m² et de 448 m² de terrain. Conçue de plain-pied, elle propose trois chambres, une cuisine et une salle de bains.
La maison est neuve.
Plusieurs écoles (maternelle, élémentaire, primaire et collège) se trouvent à moins de 10 minutes à pied. Niveau transports en commun, il y a la gare Saintes à moins de 10 minutes en voiture. L'autoroute A10 et les nationales N137 et N141 sont accessibles à moins de 3 km. On trouve un tennis, des commerces, une supérette, un bureau de poste, quatre épiceries et trois boucheries-charcuteries à proximité. Enfin, le marché Cours Reverseaux anime le quartier.
Son prix de vente est de 220 000 €.
Contactez notre agence (ROUMY Laurent : O6-79-06-63-44) pour obtenir de plus amples renseignements sur la maison, sur les modalités de vente ou sur les démarches à suivre. Maisons de la Côte Atlantique Saintes vous accompagne dans tous vos projets immobiliers et à toutes les étapes de votre projet.
Mentions légales
Idée de réalisation en modèle prêt à décorer sur l'un de nos terrains partenaires, sous réserve de disponibilités. Voir détails en agence.Agence Maisons de la Côte Atlantique de Saintes (17100)
- Téléphone :
- 05 46 74 88 74
- Adressse :
- 5, Rue Pierre et Marie Curie
17100 Saintes, France
