Maison neuve à
Saintes
(17100) Référence :
LR2488442_5
Prix du projet : Maison avec Terrain
prix 223 000 €
- 5 pièces
- 3 chambres
- Surface maison 90 m2
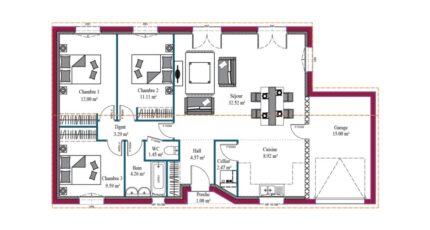
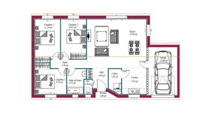
VENTE d'une maison de 5 pièces (90 m²) à Saintes
IDÉALEMENT SITUÉE - MAISON 5 PIÈCES NEUVE
En vente : à 34 km de la côte atlantique, venez découvrir cette maison de 5 pièces de plain-pied de 90 m² idéalement située dans Saintes (17100). Conçue de plain-pied, elle compte trois chambres, une cuisine et une salle de bains.
Le terrain de la maison est de 500 m².
La maison est neuve.
Cette maison est située dans un secteur recherché. Il y a plusieurs établissements scolaires (maternelle, élémentaire, primaire et collège) à moins de 10 minutes à pied. Côté transports, on trouve la gare Saintes à moins de 10 minutes en voiture. L'autoroute A10 et les nationales N137 et N141 sont accessibles à moins de 3 km. Il y a un tennis, des commerces, une supérette, quatre épiceries, trois boucheries-charcuteries et un bureau de poste dans les environs. Le marché Cours Reverseaux anime le quartier.
Elle est à vendre pour la somme de 223 000 €.
Contactez Laurent ROUMY (O6-79-06-63-44) pour obtenir de plus amples informations sur la propriété et sur les modalités de vente.
Mentions légales
Idée de réalisation en modèle prêt à décorer sur l'un de nos terrains partenaires, sous réserve de disponibilités. Voir détails en agence.Agence Maisons de la Côte Atlantique de Saintes (17100)
- Téléphone :
- 05 46 74 88 74
- Adressse :
- 5, Rue Pierre et Marie Curie
17100 Saintes, France
