Maison neuve à
Saintry-sur-Seine
(91250) Référence :
AD2467947_2
Prix du projet : Maison avec Terrain
prix 344 500 €
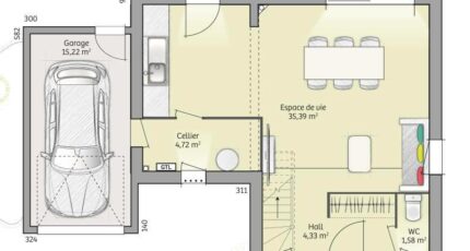
- 5 pièces
- 3 chambres
- Surface maison 90 m2
VENTE : maison de 5 pièces (90 m²) à Saintry-sur-Seine
EMPLACEMENT PRIVILÉGIÉ - MAISON 5 PIÈCES NEUVE
À proximité de la station Corbeil-Essonnes (Paris à 40 min avec le RER D), votre agence Maisons France Confort Nemours est ravie de vous proposer cette maison de 5 pièces de 90 m² bénéficiant d'un emplacement privilégié dans Saintry-sur-Seine (91250).
Cette maison compte 2 niveaux. Son intérieur dispose de trois chambres, d'une cuisine et d'une salle de bains. La maison est neuve.
Le terrain du bien est de 415 m².
La maison se situe dans un secteur recherché. On trouve quatre établissements scolaires à moins de 10 minutes à pied. Niveau transports en commun, il y a la ligne de RER D (Moulin-Galant) ainsi que 22 gares à moins de 10 minutes en voiture. Il y a une bibliothèque, un bassin de natation, plusieurs commerces et une épicerie à quelques minutes à peine.
Son prix de vente est de 344 500 €.
Prenez contact avec notre constructeur (DELOHEN Anne : 06-30-93-26-67) pour toute information sur le bien. Maisons France Confort Nemours est là pour vous accompagner dans tous vos projets immobiliers.
Annonce proposée par un Agent Commercial Partenaire.
Mentions légales
Terrain proposé par un partenaire foncier selon disponibilités et autorisation de publicité au prix de 165 000 €. Hors droit d'enregistrement et frais de notaire. Terrain + Maison proposés au prix de 344 500 € (Hors branchements et raccordements, papiers peints, peintures, revêtement de sol dans les chambres. Tarif modifiable sans préavis). Etiquette énergie : A. Différents modèles disponibles pour ce terrain. Assurances et garanties du constructeur (RC professionnelle, décennale, dommage ouvrage, garantie de remboursement de l'acompte, livraison à prix et délai convenu) : https://www.maisons-france-confort.fr/mentions-legales/. HEXAOM Services est enregistré auprès de l'ORIAS en tant que Courtier en financement, Niveau 1, sous le numéro 14001345.Agence Maisons France Confort de Nemours (77140)
- Téléphone :
- 01 64 28 58 32
- Adressse :
- 16 Avenue Carnot
77140 Nemours, France
