Maison neuve à
Salles
(33770) Référence :
LC2431452_1
Prix du projet : Maison avec Terrain
prix 250 000 €
- 3 pièces
- 3 chambres
- Surface maison 78 m2
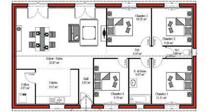
Salles : maison de 3 pièces (78 m²) en vente
MAISON 3 PIÈCES NEUVE
À vendre : à 21 km de la côte atlantique, Batisoft La Teste-de-Buch vous présente à Salles (33770), cette maison de 3 pièces de plain-pied de 78 m².
Son intérieur se divise en trois chambres, une cuisine et une salle de bains. Cette maison est neuve.
Le terrain de la propriété s'étend sur 390 m².
Des écoles (de la maternelle au lycée) sont implantées à moins de 10 minutes en voiture, tout comme une structure d'accueil pour les enfants en bas âge à moins de 10 minutes à pied. On trouve un accès à l'autoroute A63 à 7 km. Il y a deux bibliothèques, trois tennis, des commerces, trois supermarchés, des boulangeries, trois épiceries et deux bureaux de poste à proximité. Le marché Place du champ de foire anime les environs.
Elle est proposée à l'achat pour 250 000 €.
Contactez Laurent CHAMPEIL (05-57-15-12-37) pour toute question sur cette maison, sur les démarches à suivre ou sur les modalités de vente. Batisoft La Teste-de-Buch vous accompagne dans tous vos projets immobiliers et à toutes les étapes de votre projet.
Mentions légales
Idée de réalisation en modèle prêt à décorer sur l’un de nos terrains partenaires, sous réserve de disponibilités. Voir détails en agence.Agence Batisoft de La Teste-de-Buch (33260)
- Téléphone :
- 05 57 15 12 37
- Adressse :
- 27, Boulevard de Cazaux
33260 La Teste-de-Buch, France
