Maison neuve à
Salles
(33770) Référence :
CC2438104_1
Prix du projet : Maison avec Terrain
prix 379 500 €
- 4 pièces
- 3 chambres
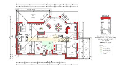
- Surface maison 111 m2
Sur la commune de Salles, dans un environnement recherché et à proximité des commerces, des écoles et des commodités, Alpha Construction vous propose un projet de maison contemporaine de 110 m², conçu pour offrir confort, modernité et qualité de vie au quotidien.
Cette maison se distingue par une conception optimisée et des volumes généreux. Vous profiterez d'une belle pièce de vie lumineuse avec cuisine ouverte, idéale pour partager des moments conviviaux en famille ou entre amis. L'espace nuit se compose de 3 chambres, dont une véritable suite parentale avec salle d'eau privative, offrant intimité et bien-être. Les prestations sont pensées pour répondre aux attentes actuelles : rangements, fonctionnalité, performance énergétique et possibilités de personnalisation afin de créer une maison parfaitement adaptée à votre mode de vie.
Le projet est implanté sur un terrain à bâtir de 1 268 m² en zone U, avec une emprise au sol possible de 25 %. Une ancienne grange est présente sur la parcelle et sera à démolir. L'assainissement individuel est à prévoir. Prix hors frais de notaire et frais annexes.
Plusieurs modèles et personnalisations disponibles.
Contactez dès maintenant votre chargé de projet, Christophe CHARON, au O6.62.O9.14.55. Alpha Constructions Groupe HDV Hexaom.
Mentions légales
Terrain proposé par un partenaire foncier selon disponibilité dans le cadre d’un projet de construction avec Alpha Constructions. Les descriptions, photographies, surfaces et prix illustrant l’annonce sont fournies à titre indicatif et ne sont pas contractuels. Non soumis au DPE. Différents modèles disponibles.Agence Alpha Constructions de Salles (33770)
- Téléphone :
- 05 56 72 89 97
- Adressse :
- 47A rue de la croix blanche
33770 Salles, France