Maison neuve à
Salles (33770) Référence : CC2438146-0_1

Prix du projet : Maison avec Terrain

prix 399 500 €

  • 3 pièces
  • 2 chambres
  • Surface maison 98 m2

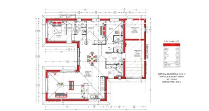
EXCLUSIVITÉ - En plein coeur de Salles, Alpha Construction vous propose un projet de maison en U de 98 m², pensé pour allier confort, fonctionnalité et qualité de vie dans un environnement recherché, à proximité immédiate des commerces, des écoles et des commodités.

Cette maison se distingue par son architecture en U, offrant une belle organisation des espaces et une ouverture optimale sur l'extérieur. Vous profiterez d'une pièce de vie lumineuse avec cuisine ouverte, idéale pour partager des moments conviviaux. L'espace nuit se compose de 3 chambres, dont une suite parentale avec salle d'eau privative, garantissant confort et intimité. Les prestations sont soignées, avec des volumes optimisés, des rangements fonctionnels et des performances énergétiques conformes aux dernières normes. Ce modèle peut être entièrement personnalisé afin de répondre parfaitement à vos envies et à votre mode de vie.

Le projet est implanté sur un terrain à bâtir en première ligne de 613 m², bénéficiant d'une emprise au sol de 50 %, offrant un réel potentiel d'aménagement. Prix hors frais de notaire et frais annexes.

Plusieurs modèles et personnalisations disponibles.
Contactez dès maintenant votre chargé de projet, Christophe CHARON, au O6.62.O9.14.55. Alpha Constructions Groupe HDV Hexaom.

Mentions légales

Terrain proposé par un partenaire foncier selon disponibilité dans le cadre d’un projet de construction avec Alpha Constructions. Les descriptions, photographies, surfaces et prix illustrant l’annonce sont fournies à titre indicatif et ne sont pas contractuels. Non soumis au DPE. Différents modèles disponibles.

Contactez l'agence de Salles

05 56 72 89 97

    * Champs obligatoires

    Vos informations sont traitées par HEXAOM et transmises à un conseiller commercial qui vous contactera afin de répondre à votre demande. Les plans et images présentés sur notre site sont la propriété d’HEXAOM et ne peuvent pas être reproduits sans son accord. Pour retrouver notre politique de protection des données personnelles et exercer vos droits conformément à la « loi informatique et liberté » cliquez-ici.