Maison neuve à
Salles
(33770) Référence :
RT2469808_4
Prix du projet : Maison avec Terrain
prix 374 040 €
- 7 pièces
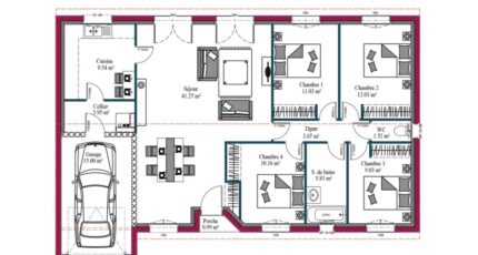
- 3 chambres
- Surface maison 101 m2
Salles : maison T7 (101 m²) à vendre
MAISON 7 PIÈCES NEUVE
À 21 km de la côte atlantique, à vendre à Salles (33770), nous vous proposons cette maison de 7 pièces de plain-pied de 101 m² et de 1 710 m² de terrain. Son intérieur compte trois chambres, une cuisine et deux salles de bains.
Cette maison est neuve.
Il y a des écoles de tous types (de la maternelle au lycée) à moins de 10 minutes en voiture, tout comme une crèche à moins de 10 minutes à pied. L'autoroute A63 est accessible à 7 km. On trouve deux bibliothèques, trois tennis, des commerces, deux épiceries, deux bureaux de poste et quatre boucheries-charcuteries dans les environs. Enfin, le marché Place du champ de foire anime les environs.
Il est à vendre pour la somme de 374 040 €.
Contactez notre agence (Romain TEXIER : O6-24-80-24-38) pour toute information sur cette maison ou sur les modalités de vente.
Mentions légales
Idée de réalisation en modèle prêt à décorer sur l'un de nos terrains partenaires, sous réserve de disponibilités. Voir détails en agence.Agence Maisons de la Côte Atlantique de Le Barp (33114)
- Téléphone :
- 05 35 37 00 44
- Adressse :
- 26 Avenue des Pyrénées
33114 Le Barp, France