Maison neuve à
Sancourt
(59268) Référence :
PG2458034_1
Prix du projet : Maison avec Terrain
prix 229 000 €
- 5 pièces
- 3 chambres
- Surface maison 100 m2
Maison à construire à Sancourt
EMPLACEMENT PRIVILÉGIÉ - MAISON NEUVE A CONSTRUIRE
VOTRE CONSEILLERE : Pauline GOMEZ - O6 19 56 27 71
Venez découvrir votre future maison neuve.
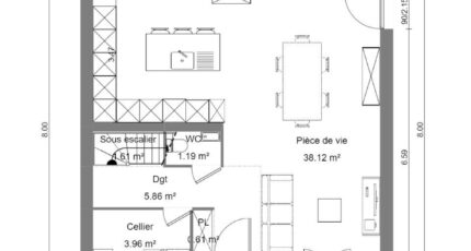
Il s'agit d'une maison de 5 pièces de plain-pied, d'une surface de 100 m².
Construction conforme aux dernières normes RE2020 (basse consommation)
Mode de chauffage dernière génération via pompe à chaleur
Plans sur mesures et modifiables à la demande.
Cette maison dispose de 3 chambres, d'une cuisine, d'une salle de bains, et un cellier.
Garanties et assurances obligatoires incluses (voir détails en agence).
Hors raccordements, hors branchements,
Terrain sélectionné et vu pour vous sous réserve de disponibilité et au prix indiqué par notre partenaire foncier.
A proximité des écoles et commerces de proximités.
Son prix de vente est de 229 000 €
Contactez Pauline GOMEZ (O6 19 56 27 71) pour toute information sur cette maison.
Pourquoi faire confiance à Maisons France confort ?
Maisons France Confort c'est le numéro 1 en France de la construction de maisons individuelles avec nos maisons personnalisables et qui s'adaptent à chaque budget.
C'est un accompagnement personnel dans toutes les démarches et étapes de votre projet immobilier (terrain, maison et financement entre autres).
Ensemble, construisons la maison qui vous ressemble !
Mentions légales
Terrain proposé par un partenaire foncier selon disponibilités et autorisation de publicité au prix de 47 000 €. Hors droit d'enregistrement et frais de notaire. Terrain + Maison proposés au prix de 229 000 € (Hors branchements et raccordements, papiers peints, peintures, revêtement de sol dans les chambres. Tarif modifiable sans préavis). Etiquette énergie : A. Différents modèles disponibles pour ce terrain. Assurances et garanties du constructeur (RC professionnelle, décennale, dommage ouvrage, garantie de remboursement de l'acompte, livraison à prix et délai convenu) : https://www.maisons-france-confort.fr/mentions-legales/. HEXAOM Services est enregistré auprès de l'ORIAS en tant que Courtier en financement, Niveau 1, sous le numéro 14001345.Agence Maisons France Confort de Cambrai (59400)
- Téléphone :
- 03 27 81 47 17
- Adressse :
- 3, Mail Saint Martin
59400 Cambrai, France
