Maison neuve à
Sanguinet
(40460) Référence :
LC2457519_5
Prix du projet : Maison avec Terrain
prix 310 000 €
- 4 pièces
- 3 chambres
- Surface maison 85 m2
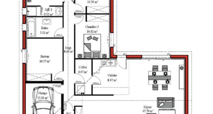
VENTE : maison de 4 pièces (85 m²) à Sanguinet
MAISON 4 PIÈCES NEUVE
À vendre : à 18 km de la côte atlantique, notre agence Batisoft La Teste-de-Buch est heureuse de vous présenter à Sanguinet (40460), cette maison de 4 pièces de plain-pied de 85 m² et de 605 m² de terrain.
Conçue de plain-pied, elle comporte trois chambres, une cuisine et une salle de bains. La maison est neuve.
Des écoles maternelles et élémentaires sont implantées à moins de 10 minutes à pied, dont l'École Élémentaire le Pin Vert, tout comme une crèche. Les autoroutes A660 et A63 et la nationale N250 sont accessibles à moins de 20 km. Il y a un tennis, des commerces, un bureau de poste, une épicerie, une poissonnerie et une boucherie-charcuterie à quelques minutes.
Son prix de vente est de 310 000 €.
Contactez notre constructeur (Laurent CHAMPEIL : 05-57-15-12-37) pour toute information sur cette maison. Batisoft La Teste-de-Buch est là pour vous accompagner dans toutes vos démarches.
Mentions légales
Idée de réalisation en modèle prêt à décorer sur l’un de nos terrains partenaires, sous réserve de disponibilités. Voir détails en agence.Agence Batisoft de La Teste-de-Buch (33260)
- Téléphone :
- 05 57 15 12 37
- Adressse :
- 27, Boulevard de Cazaux
33260 La Teste-de-Buch, France
