Maison neuve à
Sannois
(95110) Référence :
SA2496054_2
Prix du projet : Maison avec Terrain
prix 485 000 €
- 5 pièces
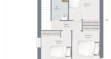
- 3 chambres
- Surface maison 90 m2
MAISON NEUVE À SANNOIS DE 90 M² AVEC 5 PIÈCES
PRÉSENTATION DU BIEN
Située à Sannois, cette maison à construire offre une surface habitable de 90 m² sur un terrain de 318 m².
Cette maison propose trois chambres, une cuisine et une salle de bains avec baignoire, pour un total de 90 m² habitables.
La maison est sur deux niveaux, comprenant un étage en plus du rez-de-chaussée.
Le terrain de 318 m² vous permettra de réaliser votre projet de construction selon vos envies.
ENVIRONNEMENT
Située dans la commune de Sannois, vous bénéficierez d'un cadre avec plusieurs écoles à proximité, telles que l'école élémentaire Jules Ferry et l'école élémentaire Henri Dunant, ainsi que des écoles maternelles comme l'école maternelle l'Orangerie et l'école maternelle Anne Frank. Le collège privé Notre-Dame et le lycée général et technologique privé Notre-Dame sont également accessibles.
Pour vos déplacements, plusieurs lignes de bus desservent la commune, notamment les lignes 30-42 et 261 avec des arrêts à proximité comme Piretins - Hôtel de Ville et Mairie. La gare de Sannois se situe à quelques minutes à pied, facilitant vos trajets quotidiens. L'autoroute A15 est facilement accessible, permettant un bon raccordement routier.
Autour du bien, vous trouverez des commerces divers ainsi que des restaurants à proximité, ainsi qu'un bureau de poste.
NOUS CONTACTER
Cette maison est en vente au prix de 485 000 euros, frais d'honoraires et charges inclus.
Pour plus d'informations et pour concrétiser votre projet de construction, n'hésitez pas à contacter Sabrina Augustine. Elle est disponible par téléphone au 06-23-03-68-32 auprès de l'agence immobilière Maisons France Confort Ris-Orangis, réseau Maisons France Confort.
Mentions légales
Terrain proposé par un partenaire foncier selon disponibilités et autorisation de publicité au prix de 235 000 €. Hors droit d'enregistrement et frais de notaire. Terrain + Maison proposés au prix de 485 000 € (Hors branchements et raccordements, papiers peints, peintures, revêtement de sol dans les chambres. Tarif modifiable sans préavis). Etiquette énergie : A. Différents modèles disponibles pour ce terrain. Assurances et garanties du constructeur (RC professionnelle, décennale, dommage ouvrage, garantie de remboursement de l'acompte, livraison à prix et délai convenu) : https://www.maisons-france-confort.fr/mentions-legales/. HEXAOM Services est enregistré auprès de l'ORIAS en tant que Courtier en financement, Niveau 1, sous le numéro 14001345.Agence Maisons France Confort de Ris-Orangis (91130)
- Téléphone :
- 01 60 47 83 15
- Adressse :
- 57 rue Albert Rémy
91130 Ris-Orangis, France
