Maison neuve à
Saubrigues (40230) Référence : AD2481520_1

Prix du projet : Maison avec Terrain

prix 320 000 €

  • 4 pièces
  • 3 chambres
  • Surface maison 85 m2

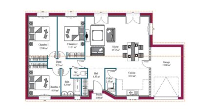
Amélie DABA des Maisons MCA à Capbreton, vous propose d'adapter le modèle Optima, sur ce joli terrain d'environ 445m², située dans un quartier recherché, sur la commune de Saubrigues, à environ 25 minutes de Bayonne, et 10 minutes de la plage de Capbreton.

Cette maison possède un grand salon-séjour tourné vers le jardin, une cuisine ouverte avec son cellier attenant, ce qui offre un espace jour de près de 38m2, le coté nuit est composé de 3 chambres avec placards, une salle de bains et wc séparés. Un garage communiquant de 15 m2 vient compléter ce bel ensemble.

Ce modèle saura vous plaire grâce à son agencement idéalement pensé pour votre confort de vie, et l'optimisation des espaces.

Le prix inclus les frais de notaire et de raccordement.

Contactez vite votre conseillère Amélie DABA, à l'agence MCA de Capbreton, afin qu'elle vous guide dans les démarches et vous accompagne dans ce projet de construction personnalisé.

Mentions légales

Idée de réalisation en modèle prêt à décorer sur l'un de nos terrains partenaires, sous réserve de disponibilités. Voir détails en agence.

Contactez l'agence de Capbreton

05 58 74 97 20

    * Champs obligatoires

    Vos informations sont traitées par HEXAOM et transmises à un conseiller commercial qui vous contactera afin de répondre à votre demande. Les plans et images présentés sur notre site sont la propriété d’HEXAOM et ne peuvent pas être reproduits sans son accord. Pour retrouver notre politique de protection des données personnelles et exercer vos droits conformément à la « loi informatique et liberté » cliquez-ici.