Maison neuve à
Saulx-les-Chartreux
(91160) Référence :
SA2421591_2
Prix du projet : Maison avec Terrain
prix 445 000 €
- 5 pièces
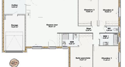
- 4 chambres
- Surface maison 113 m2
VENTE d'une maison F5 (113 m²) à Saulx-les-Chartreux
PROCHE DE PARIS - MAISON 5 PIÈCES NEUVE
À deux pas du RER B (station Palaiseau-Villebon, 20 min de Paris), votre agence Maisons France Confort Ris-Orangis est ravie de vous présenter cette maison de 5 pièces de plain-pied de 113 m² à Saulx-les-Chartreux (91160).
Elle dispose de quatre chambres, d'une cuisine et de deux salles de bains. Cette maison est neuve.
Le terrain du bien s'étend sur 650 m².
L'École Maternelle Louis Mouchard et l'École Élémentaire Anatole France se trouvent à moins de 10 minutes à pied, tout comme une structure d'accueil pour les tout-petits. Niveau transports, il y a les lignes de RER C, B et D ainsi que 19 gares à moins de 10 minutes en voiture. On trouve une bibliothèque, des commerces, une boulangerie, une boucherie-charcuterie, une épicerie et un bureau de poste à quelques minutes à peine.
Son prix de vente est de 445 000 €.
N'hésitez pas à prendre contact avec Sabrina AUGUSTINE (tél : 06-23-03-68-32) pour toute information sur cette maison, sur les démarches à suivre ou sur les modalités de vente. Maisons France Confort Ris-Orangis est là pour vous accompagner à toutes les étapes de votre projet.
Mentions légales
Terrain proposé par un partenaire foncier selon disponibilités et autorisation de publicité au prix de 245 000 €. Hors droit d'enregistrement et frais de notaire. Terrain + Maison proposés au prix de 445 000 € (Hors branchements et raccordements, papiers peints, peintures, revêtement de sol dans les chambres. Tarif modifiable sans préavis). Etiquette énergie : A. Différents modèles disponibles pour ce terrain. Assurances et garanties du constructeur (RC professionnelle, décennale, dommage ouvrage, garantie de remboursement de l'acompte, livraison à prix et délai convenu) : https://www.maisons-france-confort.fr/mentions-legales/. HEXAOM Services est enregistré auprès de l'ORIAS en tant que Courtier en financement, Niveau 1, sous le numéro 14001345.Agence Maisons France Confort de Ris-Orangis (91130)
- Téléphone :
- 01 60 47 83 15
- Adressse :
- 57 rue Albert Rémy
91130 Ris-Orangis, France
