Maison neuve à
Savonnières
(37510) Référence :
MT2464345_4
Prix du projet : Maison avec Terrain
prix 430 000 €
- 5 pièces
- 4 chambres
- Surface maison 130 m2
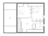
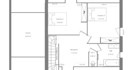
Maison de 5 pièces (130 m²) en vente à Savonnières
MAISON 5 PIÈCES NEUVE - PROCHE DE TOURS
En vente : située à deux pas de Tours, nous vous proposons cette maison de 5 pièces de 130 m² et de 600 m² de terrain à Savonnières (37510). Son intérieur offre quatre chambres, une cuisine et deux salles de bains.
Cette maison comporte 2 niveaux. Elle est neuve.
Il y a l'École Maternelle 4 Couleurs et l'École Élémentaire Boisvinet à moins de 10 minutes à pied. Niveau transports en commun, on trouve sept gares à moins de 10 minutes en voiture. On trouve un accès à l'autoroute A85 à 5 km. Il y a deux tennis, une bibliothèque, trois commerces, un bureau de poste, deux boucheries-charcuteries et deux épiceries dans les environs. Enfin, le marché Place du Cher a lieu chaque samedi matin.
Elle est proposée à l'achat pour 430 000 €.
Contactez Maxime TERNIER (tél : °6 63 77 59 71) pour plus de renseignements sur la maison. Faites de vos projets immobiliers une réalité avec Maisons France Confort Saint-Avertin.
Mentions légales
Terrain proposé par un partenaire foncier selon disponibilités et autorisation de publicité au prix de 95 000 €. Hors droit d'enregistrement et frais de notaire. Terrain + Maison proposés au prix de 430 000 € (Hors branchements et raccordements, papiers peints, peintures, revêtement de sol dans les chambres. Tarif modifiable sans préavis). Etiquette énergie : A. Différents modèles disponibles pour ce terrain. Assurances et garanties du constructeur (RC professionnelle, décennale, dommage ouvrage, garantie de remboursement de l'acompte, livraison à prix et délai convenu) : https://www.maisons-france-confort.fr/mentions-legales/. HEXAOM Services est enregistré auprès de l'ORIAS en tant que Courtier en financement, Niveau 1, sous le numéro 14001345.Agence Maisons France Confort de Saint-Avertin (37550)
- Téléphone :
- 06 27 92 26 92
- Adressse :
- 35 rue du général Mocquery
37550 Saint-Avertin, France
