Maison neuve à
Ségoufielle
(32600) Référence :
CE2393246_5
Prix du projet : Maison avec Terrain
prix 365 478 €
- 5 pièces
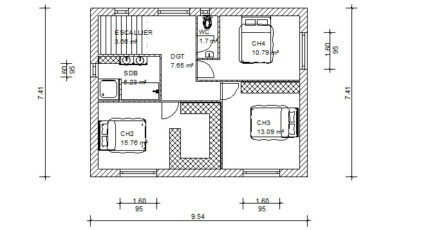
- 4 chambres
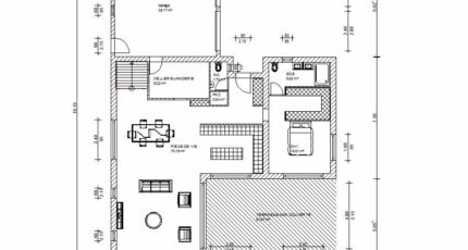
- Surface maison 160 m2
Maison de 5 pièces (160 m²) en vente à Ségoufielle avec l'agence Maisons France Confort de Tournefeuille au 05.61.16.47.77
IDÉALEMENT SITUÉE - MAISON 5 PIÈCES NEUVE
En vente : à quelques kilomètres de Toulouse, venez découvrir, idéalement située dans Ségoufielle (32600), cette maison de 5 pièces de 160 m² et de 614 m² de terrain.
Cette maison possède 2 niveaux. Elle se divise en quatre chambres, une cuisine et deux salles de bains. Cette maison est neuve.
Cette maison se situe dans un quartier recherché. On y trouve une école primaire. Niveau transports, on trouve les gares Mérenvielle, L'Isle-Jourdain et Brax-Léguevin à moins de 10 minutes en voiture. Il y a un accès à la nationale N124 à 5 km. Il y a un tennis, une boulangerie, un supermarché et une boucherie-charcuterie à quelques minutes à peine.
Son prix de vente est de 365 478 €.
Contactez l'agence Maisons France Confort de Tournefeuille au 05.61.16.47.77 pour plus d'informations sur la maison ou sur les modalités de vente.
Annonce proposée par un Agent Commercial Partenaire.
Mentions légales
Terrain proposé par un partenaire foncier selon disponibilités et autorisation de publicité au prix de 99 000 €. Hors droit d'enregistrement et frais de notaire. Terrain + Maison proposés au prix de 365 478 € (Hors branchements et raccordements, papiers peints, peintures, revêtement de sol dans les chambres. Tarif modifiable sans préavis). Etiquette énergie : A. Différents modèles disponibles pour ce terrain. Assurances et garanties du constructeur (RC professionnelle, décennale, dommage ouvrage, garantie de remboursement de l'acompte, livraison à prix et délai convenu) : https://www.maisons-france-confort.fr/mentions-legales/. HEXAOM Services est enregistré auprès de l'ORIAS en tant que Courtier en financement, Niveau 1, sous le numéro 14001345.Agence Maisons France Confort de Tournefeuille (31170)
- Téléphone :
- 05 61 16 47 77
- Adressse :
- 114 chemin de Larramet
31170 Tournefeuille, France
