Maison neuve à
Segré
(49500) Référence :
CP2452128_1
Prix du projet : Maison avec Terrain
prix 376 000 €
- 5 pièces
- 4 chambres
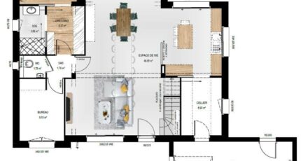
- Surface maison 135 m2
Maison T5 (135 m²) à vendre à Segré
IDÉALEMENT SITUÉE - MAISON 5 PIÈCES NEUVE
À vendre idéalement située dans Segré (49500), venez découvrir cette maison de 5 pièces de 135 m². Elle inclut quatre chambres, une cuisine et deux salles de bains.
Le terrain de la maison s'étend sur 779 m².
Cette maison comporte 2 niveaux. Elle est neuve.
Cette maison se trouve dans un quartier attractif. Il y a des établissements scolaires de tous types à moins de 10 minutes à pied, tout comme une crèche. On trouve un port de plaisance, des commerces, deux boucheries-charcuteries, trois épiceries, un bureau de poste et deux supérettes à quelques minutes. Enfin, 2 marchés animent le quartier.
Elle est à vendre pour la somme de 376 000 €.
Contactez notre agence (Carole PORCHER : 06-88-98-52-77) pour toute information sur la maison, sur les démarches à suivre et sur les modalités de vente. Maisons Bernard Jambert Angers est là pour vous accompagner dans tous vos projets immobiliers.
Mentions légales
Terrain proposé par un partenaire foncier selon disponibilités et autorisation de publicité au prix de 73 900 €. Hors droit d'enregistrement et frais de notaire. Terrain + Maison proposés au prix de 376 000 € (Hors branchements et raccordements, papiers peints, peintures, revêtement de sol dans les chambres. Tarif modifiable sans préavis). Etiquette énergie : A. Différents modèles disponibles pour ce terrain. Assurances et garanties du constructeur (RC professionnelle, décennale, dommage ouvrage, garantie de remboursement de l'acompte, livraison à prix et délai convenu) : https://www.maisons-bernard-jambert.com/informations-legales/.Agence Maisons Bernard Jambert de Angers (49000)
- Téléphone :
- 02 41 77 17 17
- Adressse :
- 55 bd Eugène Chaumin
49000 Angers, France