Maison neuve à
Seignosse (40510) Référence : JDC2495489_2

Prix du projet : Maison avec Terrain

prix 549 000 €

  • 4 pièces
  • 3 chambres
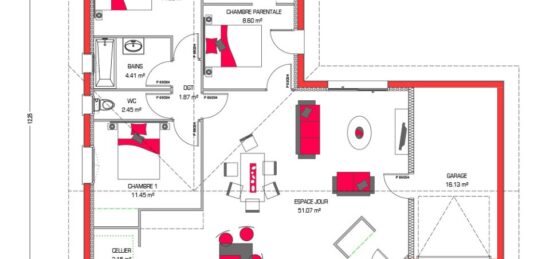
  • Surface maison 90 m2

À VENDRE - Projet terrain + maison à Seignosse

Et si votre futur chez-vous prenait vie dans un cadre d'exception, entre océan, nature et douceur de vivre

Sur un terrain de 628 m², idéalement situé dans un lotissement agréable à Seignosse, découvrez ce projet de maison de plain-pied de 90 m² habitables, pensé pour allier confort, simplicité et qualité de vie

La maison s'organise autour d'une pièce de vie lumineuse et ouverte, véritable coeur du foyer, tournée vers l'extérieur pour profiter pleinement du jardin et des beaux jours

L'espace nuit accueille trois chambres, offrant à chacun son espace dans une atmosphère calme et fonctionnelle, parfaitement adaptée à une vie de famille ou à un projet de résidence secondaire

L'implantation de plain-pied favorise une circulation fluide et un quotidien pratique, dans une maison facile à vivre et à entretenir

Situé à proximité des plages, des pistes cyclables et des commodités, ce projet bénéficie d'un emplacement rare dans l'un des secteurs les plus recherchés de la côte landaise

Un projet harmonieux, accessible et idéalement situé, pour créer un lieu de vie qui vous ressemble

Une belle opportunité à Seignosse, à découvrir sans tarder

Mentions légales

Terrain proposé par un partenaire foncier selon disponibilité dans le cadre d’un projet de construction avec Couleur Villas. Les descriptions, photographies, surfaces et prix illustrant l’annonce sont fournies à titre indicatif et ne sont pas contractuels. Non soumis au DPE. Différents modèles disponibles.

Contactez l'agence de Labenne

05 24 33 03 87

    * Champs obligatoires

    Vos informations sont traitées par HEXAOM et transmises à un conseiller commercial qui vous contactera afin de répondre à votre demande. Les plans et images présentés sur notre site sont la propriété d’HEXAOM et ne peuvent pas être reproduits sans son accord. Pour retrouver notre politique de protection des données personnelles et exercer vos droits conformément à la « loi informatique et liberté » cliquez-ici.