Maison neuve à
Sénas
(13560) Référence :
JCR2472736_2
Prix du projet : Maison avec Terrain
prix 305 000 €
- 4 pièces
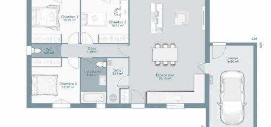
- 3 chambres
- Surface maison 80 m2
Votre maison prête à naître ici, sur cette parcelle de terrain constructible d'une surface de 351 m² à "Sénas 13560", qui offre un cadre idéal pour votre projet de vie.
Sur ce terrain idéalement situé, imaginez une maison de 80m² à étage pensée pour le confort et la convivialité:
un grand espace lumineux, trois chambres spacieuses, un garage en option et un jardin où les enfants grandissent heureux.
Nous concevons et réalisons votre maison sur mesure, avec des matériaux de qualité et un accompagnement de confiance, du plan à la remise des clés.
Projet maison + terrain à partir de 305 000 €, hors frais et adaptations.
Contactez notre agence Maisons France Confort agence de Salon de Provence pour toute question sur la maison ou sur les démarches à suivre. Donnez vie à vos projets immobiliers avec Maisons France Confort Salon-de-Provence. Nous proposons aussi des projets de construction sur Mouriès 13890, Maussane-les-Alpilles 13520, Eyguières 13430, Salon de Provence 13300, Sénas 13560, Mallemort 13370, Pélissanne 13330 et de nombreuses autres villes et villages.
Mentions légales
Terrain proposé par un partenaire foncier selon disponibilités et autorisation de publicité au prix de 154 900 €. Hors droit d'enregistrement et frais de notaire. Terrain + Maison proposés au prix de 305 000 €. Tarif modifiable sans préavis. Etiquette énergie : A. Différents modèles disponibles pour ce terrain. Assurances et garanties du constructeur (RC professionnelle, décennale, dommage ouvrage, garantie de remboursement de l'acompte, livraison à prix et délai convenu) : https://www.maisons-france-confort.fr/mentions-legales/. HEXAOM Services est enregistré auprès de l'ORIAS en tant que Courtier en financement, Niveau 1, sous le numéro 14001345.Agence Maisons France Confort de Salon-de-Provence (13300)
- Téléphone :
- 04 90 56 69 36
- Adressse :
- 229, Avenue Georges Borel
13300 Salon-de-Provence, France
