Maison neuve à
Sérignan (34410) Référence : AB2448465_3

Prix du projet : Maison avec Terrain

prix 265 000 €

  • 3 pièces
  • 2 chambres
  • Surface maison 70 m2

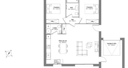
PROJET DE CONSTRUCTION - Maison T3 (70 m²) à Sérignan
PROCHE DE BÉZIERS - MAISON 3 PIÈCES
À vendre : sur la côte méditerranéenne et à 10 km de Béziers, à Sérignan (34410), nous vous proposons cette maison de 3 pièces de plain-pied de 70 m² et de 316 m² de terrain.
Son intérieur propose deux chambres, une cuisine, un cellier et une salle de bains + GARAGE.
(Carrelage inclus dans toutes les pièces / Raccordements inclus).
L'École Maternelle Ferdinand Buisson, l'École Élémentaire Paul Bert et le Collège Marcel Pagnol sont implantés à moins de 10 minutes à pied. Côté transports, il y a la gare Béziers à moins de 10 minutes en voiture. On trouve un tennis, des commerces, quatre épiceries, un bureau de poste, deux boucheries-charcuteries et une supérette à quelques minutes à peine.
Elle est à vendre pour la somme de 265 000 €.
Pour plus d'information contacter Anthony BALLESTER 06 27 21 51 55 Maisons France Confort Béziers pour échanger sur votre projet et réaliser une étude gratuite. (Plan personnalisable). Tous nos ouvrages sont réalisés sur-mesure en fonction de vos attentes et de nos échanges avec vous ainsi que dans le respect de la règlementation RE 2020. Ce projet comporte les garanties suivantes: Contrat de construction CCMI. Dommage/Ouvrage. RC Garantie décennale. Parfaite achèvement. Etude de sol G2. Prix et délais convenu. Garantie de livraison. Garantie financière Pour votre tranquillité nous nous occupons de toutes les formalités administratives.

Mentions légales

Terrain proposé par un partenaire foncier selon disponibilités et autorisation de publicité au prix de 124 000 €. Hors droit d'enregistrement et frais de notaire. Terrain + Maison proposés au prix de 265 000 € (Hors branchements et raccordements, papiers peints, peintures, revêtement de sol dans les chambres. Tarif modifiable sans préavis). Etiquette énergie : A. Différents modèles disponibles pour ce terrain. Assurances et garanties du constructeur (RC professionnelle, décennale, dommage ouvrage, garantie de remboursement de l'acompte, livraison à prix et délai convenu) : https://www.maisons-france-confort.fr/mentions-legales/. HEXAOM Services est enregistré auprès de l'ORIAS en tant que Courtier en financement, Niveau 1, sous le numéro 14001345.

Contactez l'agence de Béziers

04 67 00 85 60

    * Champs obligatoires

    Vos informations sont traitées par HEXAOM et transmises à un conseiller commercial qui vous contactera afin de répondre à votre demande. Les plans et images présentés sur notre site sont la propriété d’HEXAOM et ne peuvent pas être reproduits sans son accord. Pour retrouver notre politique de protection des données personnelles et exercer vos droits conformément à la « loi informatique et liberté » cliquez-ici.