Maison neuve à
Marans
(17230) Référence :
RB2457628_1
Prix du projet : Maison avec Terrain
prix 265 000 €
- 4 pièces
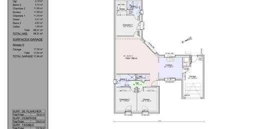
- 3 chambres
- Surface maison 90 m2
A Vendre à Sérigny -Andilly,
un futur projet de construction de 90m2 sur un terrain de 355m2 plein SUD, de 3chambres, de 2 salles de bains confortable, un garage et une belle pièce de vie agréable, à prévoir des travaux de décorations.
Assurances, frais de notaire et de raccordements inclus pour 265000€.
Contactez Romuald Bruneau : O6 63 80 67 27- MAISON ACCO
Mentions légales
Terrain proposé par un partenaire foncier selon disponibilités et autorisation de publicité au prix de 88 900 €. Hors droit d'enregistrement et frais de notaire. Terrain + Maison proposés au prix de 265 000 € (Hors branchements et raccordements, papiers peints, peintures, revêtement de sol dans les chambres. Tarif modifiable sans préavis). Etiquette énergie : A. Différents modèles disponibles pour ce terrain. Assurances et garanties du constructeur (RC professionnelle, décennale, dommage ouvrage, garantie de remboursement de l'acompte, livraison à prix et délai convenu) : https://www.maisons-acco.com/informations-legales/.Agence Maisons Acco de La Jarne (17220)
- Téléphone :
- 05 46 01 50 50
- Adressse :
- 110 Route Nationale
17220 La Jarne, France
