Maison neuve à
Serris
(77700) Référence :
HN2382743_3
Prix du projet : Maison avec Terrain
prix 580 000 €
- 8 pièces
- 5 chambres
- Surface maison 160 m2
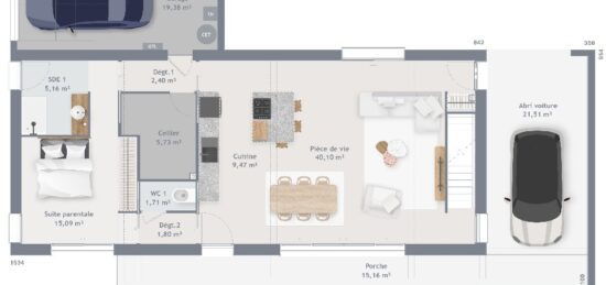
VENTE : maison F8 (160 m²) à Serris
IDÉALEMENT SITUÉE - MAISON 8 PIÈCES NEUVE
En vente : à deux pas du RER A (station Val d'Europe, 30 min de Paris), votre agence Maisons France Confort Magny-le-Hongre est heureuse de vous présenter, idéalement située dans Serris (77700), cette maison de 8 pièces de 160 m². Son intérieur propose cinq chambres, une cuisine et six salles de bains.
Le terrain du bien est de 360 m².
Cette maison compte 2 niveaux. Elle est neuve.
Le bien se trouve dans un secteur attractif. Il y a cinq établissements scolaires à moins de 10 minutes à pied, tout comme une crèche. Côté transports, on trouve la ligne de RER A (Val-D'Europe) ainsi que sept gares à moins de 10 minutes en voiture. Il y a un tennis, un bassin de natation, une boulangerie, des commerces, une épicerie et deux supérettes dans les environs.
Il est proposé à l'achat pour 580 000 €.
Prenez contact avec Hugo NGUYEN (tél : 06-60-97-69-03) pour obtenir de plus amples informations sur la maison ou sur les modalités de vente. Maisons France Confort Magny-le-Hongre vous accompagne dans toutes vos démarches et à toutes les étapes de l'achat.
Annonce proposée par un Agent Commercial Partenaire.
Mentions légales
Terrain proposé par un partenaire foncier selon disponibilités et autorisation de publicité au prix de 250 000 €. Hors droit d'enregistrement et frais de notaire. Terrain + Maison proposés au prix de 580 000 € (Hors branchements et raccordements, papiers peints, peintures, revêtement de sol dans les chambres. Tarif modifiable sans préavis). Etiquette énergie : A. Différents modèles disponibles pour ce terrain. Assurances et garanties du constructeur (RC professionnelle, décennale, dommage ouvrage, garantie de remboursement de l'acompte, livraison à prix et délai convenu) : https://www.maisons-france-confort.fr/mentions-legales/. HEXAOM Services est enregistré auprès de l'ORIAS en tant que Courtier en financement, Niveau 1, sous le numéro 14001345.Agence Maisons France Confort de Magny-le-Hongre (77700)
- Téléphone :
- 01 84 80 92 96
- Adressse :
- 11 rue de Courtalin
77700 Magny-le-Hongre, France
