Maison neuve à
Serris (77700) Référence : DC2436575-0_1

Prix du projet : Maison avec Terrain

prix 345 974 €

  • 5 pièces
  • 3 chambres
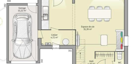
  • Surface maison 90 m2

VENTE d'une maison de 5 pièces (90 m²) à Couilly-Pont-aux-Dames
QUARTIER RECHERCHÉ - MAISON 5 PIÈCES NEUVE
À vendre : à quelques kilomètres de Montreuil, construite dans un quartier recherché de Couilly-Pont-aux-Dames (77860), découvrez cette maison de 5 pièces de 90 m².
Il s'agit d'une maison de 2 niveaux. Son intérieur est composé de trois chambres, d'une cuisine et d'une salle de bains. La maison est neuve.
Le terrain du bien s'étend sur 342 m².
Cette maison est située dans un secteur convoité. Il y a le Collège Privé Sainte Thérèse, l'École Primaire Privée Sainte-Thérèse et l'École Primaire Fabre d'Eglantine à moins de 10 minutes à pied et une crèche. Niveau transports, on trouve la gare Couilly-Saint-Germain-Quincy à proximité. Il y a un tennis, une bibliothèque, des commerces, trois boulangeries, un supermarché, une supérette et un bureau de poste à quelques minutes à peine.
Elle est à vendre pour la somme de 345 974 €.
Contactez David CORDIER (tél : 06-10-79-38-15) pour plus d'informations sur le bien ou sur les modalités de vente. Concrétisez vos projets immobiliers avec Maisons France Confort Melun.

Annonce proposée par un Agent Commercial Partenaire.

Mentions légales

Terrain proposé par un partenaire foncier selon disponibilités et autorisation de publicité au prix de 145 000 €. Hors droit d'enregistrement et frais de notaire. Terrain + Maison proposés au prix de 345 974 € (Hors branchements et raccordements, papiers peints, peintures, revêtement de sol dans les chambres. Tarif modifiable sans préavis). Etiquette énergie : A. Différents modèles disponibles pour ce terrain. Assurances et garanties du constructeur (RC professionnelle, décennale, dommage ouvrage, garantie de remboursement de l'acompte, livraison à prix et délai convenu) : https://www.maisons-france-confort.fr/mentions-legales/. HEXAOM Services est enregistré auprès de l'ORIAS en tant que Courtier en financement, Niveau 1, sous le numéro 14001345.

Contactez l'agence de Melun

01 64 14 43 20

    * Champs obligatoires

    Vos informations sont traitées par HEXAOM et transmises à un conseiller commercial qui vous contactera afin de répondre à votre demande. Les plans et images présentés sur notre site sont la propriété d’HEXAOM et ne peuvent pas être reproduits sans son accord. Pour retrouver notre politique de protection des données personnelles et exercer vos droits conformément à la « loi informatique et liberté » cliquez-ici.