Maison neuve à 
  Servian
 (34290)  Référence :
 AB2235056_3 
Prix du projet : Maison avec Terrain
prix 241 000 €
- 3 pièces
- 2 chambres
- Surface maison 70 m2
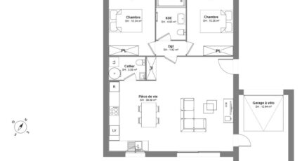
PROJET DE CONSTRUCTION - Maison de 3 pièces (70 m²) à Servian
PROCHE DE BÉZIERS - MAISON 3 PIÈCES
En vente : localisée à 18 km de la mer Méditerranée et à quelques kilomètres de Béziers, nous sommes ravis de vous proposer à Servian (34290), cette maison de 3 pièces de plain-pied de 70 m². Elle compte deux chambres, une cuisine, un cellier et une salle de bains + GARAGE.
Le terrain du bien s'étend sur 400 m².
(Carrelage inclus dans toutes les pièces / Raccordements inclus).
Il y a l'École Primaire Privée Saint Joseph, l'École Élémentaire Jules Ferry, l'École Maternelle Jean Moulin et le Collège Alfred Crouzet à moins de 10 minutes à pied. Niveau transports en commun, on trouve la gare Magalas à moins de 10 minutes en voiture. Les autoroutes A75 et A9 sont accessibles à moins de 10 km. Il y a un bassin de natation, quatre boulangeries, des commerces, un supermarché, un bureau de poste et deux épiceries à proximité du logement.
Elle est proposée à l'achat pour 241 000 €.
Pour plus d'information contacter (Anthony BALLESTER : 06-27-21-51-55) Maisons France Confort Béziers pour échanger sur votre projet et réaliser une étude gratuite. (Plan personnalisable). Tous nos ouvrages sont réalisés sur-mesure en fonction de vos attentes et de nos échanges avec vous ainsi que dans le respect de la règlementation RE 2020. Ce projet comporte les garanties suivantes: Contrat de construction CCMI. Dommage/Ouvrage. RC Garantie décennale. Parfaite achèvement. Etude de sol G2. Prix et délais convenu. Garantie de livraison. Garantie financière Pour votre tranquillité nous nous occupons de toutes les formalités administratives.
Mentions légales
Terrain proposé par un partenaire foncier selon disponibilités et autorisation de publicité au prix de 115 000 €. Hors droit d'enregistrement et frais de notaire. Maison proposée, avec un contrat de construction de maison individuelle, dans le cadre de la loi du 19/12/1990, au prix de 126 000 € (Hors branchements et raccordements, papiers peints, peintures, revêtement de sol dans les chambres, qui sont chiffrés dans les travaux qui restent à charge du client. Tarif modifiable sans préavis). Étiquette énergie : A. Différents modèles disponibles pour ce terrain. Assurances et garanties du constructeur comprises (RC professionnelle, décennale, dommage ouvrage).Agence Maisons France Confort de Béziers (34500)
- Téléphone :
- 04 67 00 85 60
- Adressse :
-  66, avenue Pierre Verdier
 34500 Béziers, France
 
  
  
  
  
  
  
  
  
  
  
  
  
 