Maison neuve à
Seyresse (40180) Référence : JT2471505_2

Prix du projet : Maison avec Terrain

prix 290 000 €

  • 3 pièces
  • 3 chambres
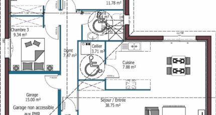
  • Surface maison 95 m2

🌟✨ Découvrez Votre Futur chez Vous ! ✨🏡 Jessyca THÉNEAU des maisons MCA vous présente un terrain de 553m² sur la commune de Seyresse.

🏡 Emplacement Idéal : Niché dans un petit lotissement, à deux pas des commodités et écoles du village, aux portes de Dax.

🔧 Viabilisation Complète : Eau, électricité, téléphone, tout à l'égout - ce terrain est prêt à accueillir votre projet de construction MCA.

Contactez Jessyca THÉNEAU à l'agence MCA de Saint Paul Lès Dax, pour une étude gratuite et personnalisée, afin de concrétiser votre rêve de construction.

Laissez-vous guider vers votre nouvelle maison ! 🏠🌈
#TerrainÀBâtir #ProjetConstruction #MCAImmobilier

Mentions légales

Idée de réalisation en modèle prêt à décorer sur l'un de nos terrains partenaires, sous réserve de disponibilités. Voir détails en agence.

Contactez l'agence de Saint-Paul-lès-Dax

05 58 35 44 71

    * Champs obligatoires

    Vos informations sont traitées par HEXAOM et transmises à un conseiller commercial qui vous contactera afin de répondre à votre demande. Les plans et images présentés sur notre site sont la propriété d’HEXAOM et ne peuvent pas être reproduits sans son accord. Pour retrouver notre politique de protection des données personnelles et exercer vos droits conformément à la « loi informatique et liberté » cliquez-ici.