Maison neuve à
Signy-Signets (77640) Référence : CY2406956_2

Prix du projet : Maison avec Terrain

prix 234 000 €

  • 5 pièces
  • 3 chambres
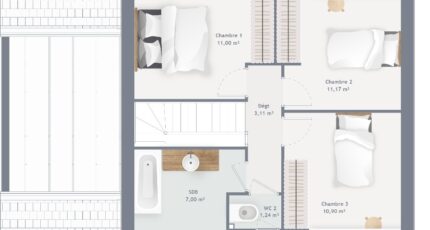
  • Surface maison 90 m2

Signy-Signets : maison F5 (90 m²) à vendre
IDÉALEMENT SITUÉE - MAISON 5 PIÈCES NEUVE
Proche du Transilien P (gare de Changis-Saint-Jean, 35 min de Paris), nous vous proposons en vente, idéalement située dans Signy-Signets (77640), cette maison de 5 pièces de 90 m² et de 449 m² de terrain.
Cette maison compte 2 niveaux. Son intérieur dispose de trois chambres, d'une cuisine et d'une salle de bains. Cette maison est neuve.
La maison est située dans un quartier convoité. Une école élémentaire y est implantée. Côté transports, on trouve quatre gares à moins de 10 minutes en voiture. Il y a un tennis à quelques minutes à peine.
Elle est à vendre pour la somme de 234 000 €.
Contactez Cedric YAHIAOUI (06-66-57-00-63) pour obtenir de plus amples renseignements sur le bien, sur les modalités de vente ou sur les démarches à suivre. Maisons France Confort Mareuil-lès-Meaux est là pour vous accompagner à toutes les étapes de l'achat.

Annonce proposée par un Agent Commercial Partenaire.

Mentions légales

Terrain proposé par un partenaire foncier selon disponibilités et autorisation de publicité au prix de 72 000 €. Hors droit d'enregistrement et frais de notaire. Terrain + Maison proposés au prix de 234 000 € (Hors branchements et raccordements, papiers peints, peintures, revêtement de sol dans les chambres. Tarif modifiable sans préavis). Etiquette énergie : A. Différents modèles disponibles pour ce terrain. Assurances et garanties du constructeur (RC professionnelle, décennale, dommage ouvrage, garantie de remboursement de l'acompte, livraison à prix et délai convenu) : https://www.maisons-france-confort.fr/mentions-legales/. HEXAOM Services est enregistré auprès de l'ORIAS en tant que Courtier en financement, Niveau 1, sous le numéro 14001345.

Contactez l'agence de Mareuil-lès-Meaux

01 60 09 28 30

    * Champs obligatoires

    Vos informations sont traitées par HEXAOM et transmises à un conseiller commercial qui vous contactera afin de répondre à votre demande. Les plans et images présentés sur notre site sont la propriété d’HEXAOM et ne peuvent pas être reproduits sans son accord. Pour retrouver notre politique de protection des données personnelles et exercer vos droits conformément à la « loi informatique et liberté » cliquez-ici.