Maison neuve à
Soissons (02200) Référence : JR2486859_1

Prix du projet : Maison avec Terrain

prix 189 000 €

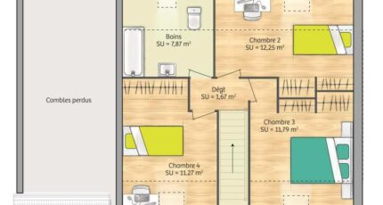
  • 6 pièces
  • 4 chambres
  • Surface maison 89 m2

TERRAIN à bâtir à Soissons (02200)
JOACHIM REICH, Maisons France Confort, vous propose ce terrain prêt à accueillir votre future maison grâce à une collaboration privilégiée avec notre partenaire. Le programme Ma Maison dans l'Aisne permet aux familles répondant aux critères d'accession de faire construire leur résidence principale dans le département de l'Aisne.
Les critères d'accession
Ne pas être déjà propriétaire
Faire construire pour la première fois
Habiter la maison en tant que résidence principale
Ne pas dépasser les plafonds de ressources fixés pour l'opération
Pour plus de renseignements vous pouvez me contacter au 06/27/71/60/55

Mentions légales

Terrain proposé par un partenaire foncier selon disponibilités et autorisation de publicité au prix de 16 400 €. Hors droit d'enregistrement et frais de notaire. Terrain + Maison proposés au prix de 189 000 € (Hors branchements et raccordements, papiers peints, peintures, revêtement de sol dans les chambres. Tarif modifiable sans préavis). Etiquette énergie : A. Différents modèles disponibles pour ce terrain. Assurances et garanties du constructeur (RC professionnelle, décennale, dommage ouvrage, garantie de remboursement de l'acompte, livraison à prix et délai convenu) : https://www.maisons-france-confort.fr/mentions-legales/. HEXAOM Services est enregistré auprès de l'ORIAS en tant que Courtier en financement, Niveau 1, sous le numéro 14001345.

Contactez l'agence de Compiègne

03 44 86 81 34

    * Champs obligatoires

    Vos informations sont traitées par HEXAOM et transmises à un conseiller commercial qui vous contactera afin de répondre à votre demande. Les plans et images présentés sur notre site sont la propriété d’HEXAOM et ne peuvent pas être reproduits sans son accord. Pour retrouver notre politique de protection des données personnelles et exercer vos droits conformément à la « loi informatique et liberté » cliquez-ici.