Maison neuve à
Solférino (40210) Référence : TM1894363_3

Prix du projet : Maison avec Terrain

prix 282 500 €

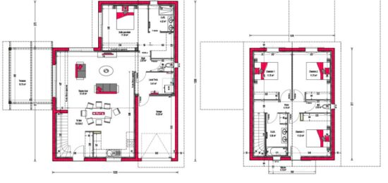
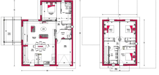
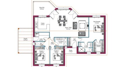
  • 5 pièces
  • 3 chambres
  • Surface maison 107 m2

Thierry MANO des maisons MCA à Biscarrosse, vous propose d'implanter le modèle Lumière, sur ce terrain plat de 1113m2, situé la commune de Solferino.

Cette maison contemporaine est optimisée pour votre confort de vie. Elle offre un espace de vie de près de 50m2, baigné de lumière grâce à un bow-window donnant sur une terrasse, une belle cuisine fonctionnelle avec cellier attenant et garage communiquant. L'espace nuit est composé de 2 chambres avec placards, une très belle suite parentale, une salle de bains et WC séparés.

Vous serez séduits par le grand séjour lumineux, et la grande suite parentale.

Rare opportunité sur le secteur !

Le prix affiché comprend le terrain, les frais de notaire, les frais annexes (raccordements, asl, bornage), et cette maison livrée prête à décorer.

Pour vous accompagner dans votre projet de construction personnalisé, contactez vite Thierry MANO O6-23-78-15-71 à l'agence MCA de Biscarrosse, il vous accompagnera dans les démarches et la conception de votre maison.

Contactez l'agence de Biscarrosse

05 35 37 19 66

    * Champs obligatoires

    Vos informations sont traitées par HEXAOM et transmises à un conseiller commercial qui vous contactera afin de répondre à votre demande. Les plans et images présentés sur notre site sont la propriété d’HEXAOM et ne peuvent pas être reproduits sans son accord. Pour retrouver notre politique de protection des données personnelles et exercer vos droits conformément à la « loi informatique et liberté » cliquez-ici.