Maison neuve à
Sommervieu
(14400) Référence :
JS2322046_5
Prix du projet : Maison avec Terrain
prix 256 000 €
- 7 pièces
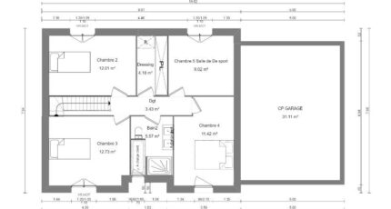
- 5 chambres
- Surface maison 120 m2
Bayeux : maison F7 (120 m²) à vendre
PROCHE DE CAEN - MAISON 7 PIÈCES NEUVE
En vente à 9 km de la Manche et à quelques kilomètres de Caen, à Bayeux (14400), nous sommes ravis de vous présenter cette maison de 7 pièces de 120 m².
Il s'agit d'une maison de 2 niveaux. Elle se divise en cinq chambres, une cuisine et deux salles de bains. Cette maison est neuve.
Le terrain de la propriété est de 303 m².
Il y a des écoles du primaire et du secondaire à moins de 10 minutes à pied, tout comme une crèche. Côté transports, on trouve la gare Bayeux juste à côté. La nationale N13 est accessible à 3 km. Il y a une bibliothèque, des commerces, des boulangeries, un supermarché, un bureau de poste et trois épiceries à quelques minutes du bien. 2 marchés animent le quartier.
Elle est à vendre pour la somme de 256 000 €.
Contactez Emilie HUE (06-29-81-46-66) pour plus de renseignements sur le bien. Concrétisez vos projets immobiliers avec Maisons France Confort Bayeux.
Annonce proposée par un Agent Commercial Partenaire.
Mentions légales
Terrain proposé par un partenaire foncier selon disponibilités et autorisation de publicité au prix de 56 000 €. Hors droit d'enregistrement et frais de notaire. Maison proposée, avec un contrat de construction de maison individuelle, dans le cadre de la loi du 19/12/1990, au prix de 200 000 € (Hors branchements et raccordements, papiers peints, peintures, revêtement de sol dans les chambres, qui sont chiffrés dans les travaux qui restent à charge du client. Tarif modifiable sans préavis). Étiquette énergie : A. Différents modèles disponibles pour ce terrain. Assurances et garanties du constructeur comprises (RC professionnelle, décennale, dommage ouvrage).Agence Maisons France Confort de Bayeux (14400)
- Téléphone :
- 02 31 51 20 91
- Adressse :
- 2, rue Saint Loup
14400 Bayeux, France
