Maison neuve à
Sommervieu
(14400) Référence :
JS2322046_8
Prix du projet : Maison avec Terrain
prix 221 000 €
- 6 pièces
- 4 chambres
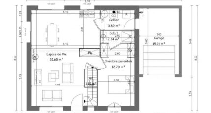
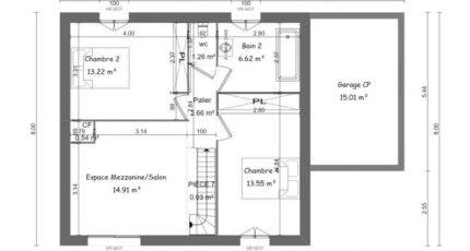
- Surface maison 110 m2
Bayeux : maison T6 (110 m²) à vendre
PROCHE DE CAEN - MAISON 6 PIÈCES NEUVE
À vendre : à 9 km de la Manche et à deux pas de Caen, nous vous présentons cette maison de 6 pièces de 110 m² et de 303 m² de terrain à Bayeux (14400).
C'est une maison de 2 niveaux. Son intérieur dispose de quatre chambres, d'une cuisine et de deux salles de bains. Cette maison est neuve.
Il y a tous les types d'écoles (de la maternelle au lycée) à moins de 10 minutes à pied, tout comme une crèche. Côté transports en commun, on trouve la gare Bayeux dans un rayon de 1 km. La nationale N13 est accessible à 3 km. Il y a une bibliothèque, des commerces, des boulangeries, un supermarché, trois épiceries et des boucheries-charcuteries à quelques minutes de la maison. Enfin, 2 marchés animent les environs.
Elle est proposée à l'achat pour 221 000 €.
Contactez Emilie HUE (06-29-81-46-66) pour toute question sur la maison, sur les modalités de vente ou sur les démarches à suivre.
Annonce proposée par un Agent Commercial Partenaire.
Mentions légales
Terrain proposé par un partenaire foncier selon disponibilités et autorisation de publicité au prix de 56 000 €. Hors droit d'enregistrement et frais de notaire. Maison proposée, avec un contrat de construction de maison individuelle, dans le cadre de la loi du 19/12/1990, au prix de 165 000 € (Hors branchements et raccordements, papiers peints, peintures, revêtement de sol dans les chambres, qui sont chiffrés dans les travaux qui restent à charge du client. Tarif modifiable sans préavis). Étiquette énergie : A. Différents modèles disponibles pour ce terrain. Assurances et garanties du constructeur comprises (RC professionnelle, décennale, dommage ouvrage).Agence Maisons France Confort de Bayeux (14400)
- Téléphone :
- 02 31 51 20 91
- Adressse :
- 2, rue Saint Loup
14400 Bayeux, France
