Maison neuve à
Soulac-sur-Mer (33780) Référence : TB2449285_1

Prix du projet : Maison avec Terrain

prix 505 300 €

  • 4 pièces
  • 3 chambres
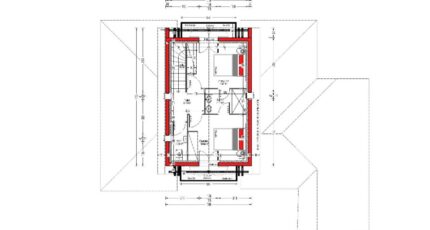
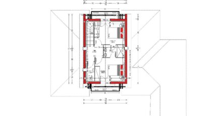
  • Surface maison 115 m2

Terrain à bâtir à SOULAC SUR MER

Découvrez un projet rare sur la commune très recherchée de SOULAC SUR MER, situé au calme sur une superbe parcelle d'environ 565 m² exposée à proximité du centre ville et de l'océan.

Nous vous proposons ici un projet terrain + maison, entièrement personnalisable selon vos envies et votre mode de vie.

La maison proposée en exemple développe environ 115 m² habitables.

Elle se compose notamment de :

Une grande pièce de vie lumineuse ouverte sur le jardin

Suite parentale

Trois autres chambres

Salles de bains

Un cellier / buanderie, garage.

Les volumes sont pensés pour offrir une circulation fluide, beaucoup de lumière, et un confort moderne.

Le terrain, non viabilisé, permet d'imaginer un beau jardin paysager, une terrasse généreuse, ainsi qu'une piscine si vous le souhaitez.

Coût global du projet terrain + maison : 505 300 €

Le projet est entièrement adaptable : plans, style architectural, agencement intérieur. Rien n'est figé.

Pour plus d'informations ou pour étudier un projet de construction sur-mesure :
Thierry BOUYER O7 86 32 52 14
Alpha Constructions Gaillan en Médoc

Mentions légales

Terrain proposé par un partenaire foncier selon disponibilité dans le cadre d’un projet de construction avec Alpha Constructions. Les descriptions, photographies, surfaces et prix illustrant l’annonce sont fournies à titre indicatif et ne sont pas contractuels. Non soumis au DPE. Différents modèles disponibles.

Contactez l'agence de Gaillan-en-Médoc

05 57 75 46 43

    * Champs obligatoires

    Vos informations sont traitées par HEXAOM et transmises à un conseiller commercial qui vous contactera afin de répondre à votre demande. Les plans et images présentés sur notre site sont la propriété d’HEXAOM et ne peuvent pas être reproduits sans son accord. Pour retrouver notre politique de protection des données personnelles et exercer vos droits conformément à la « loi informatique et liberté » cliquez-ici.