Maison neuve à
Soulgé-sur-Ouette
(53210) Référence :
CF2409814_1
Prix du projet : Maison avec Terrain
prix 218 300 €
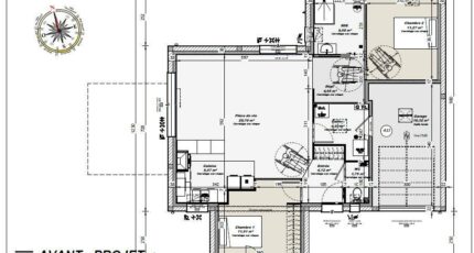
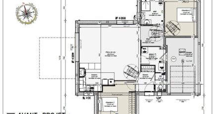
- 4 pièces
- 2 chambres
- Surface maison 79 m2
VENTE d'une maison de 4 pièces (79 m²) à Soulgé-sur-Ouette
IDÉALEMENT SITUÉE - MAISON 4 PIÈCES NEUVE
En vente : localisée à quelques kilomètres de Laval, ayez le coup de coeur pour cette maison de 4 pièces de plain-pied de 79 m² et de 533 m² de terrain idéalement située dans Soulgé-sur-Ouette (53210).
Conçue de plain-pied, elle propose deux chambres, une cuisine et une salle de bains. La maison est neuve.
La maison se trouve dans un secteur recherché. Une école primaire y est implantée. Niveau transports en commun, il y a la gare Montsûrs à moins de 10 minutes en voiture. L'autoroute A81 est accessible à 6 km. On trouve un commerce dans les environs.
Elle est proposée à l'achat pour 218 300 €.
N'hésitez pas à prendre contact avec notre agence (Claire FERBER : 06-61-55-82-88) pour obtenir de plus amples informations sur la maison, sur les démarches à suivre ou sur les modalités de vente. Maisons France Confort Bonchamp-lès-Laval vous accompagne à toutes les étapes de l'achat et dans tous vos projets immobiliers.
Mentions légales
Terrain proposé par un partenaire foncier selon disponibilités et autorisation de publicité au prix de 42 000 €. Hors droit d'enregistrement et frais de notaire. Terrain + Maison proposés au prix de 218 300 € (Hors branchements et raccordements, papiers peints, peintures, revêtement de sol dans les chambres. Tarif modifiable sans préavis). Etiquette énergie : A. Différents modèles disponibles pour ce terrain. Assurances et garanties du constructeur (RC professionnelle, décennale, dommage ouvrage, garantie de remboursement de l'acompte, livraison à prix et délai convenu) : https://www.maisons-france-confort.fr/mentions-legales/. HEXAOM Services est enregistré auprès de l'ORIAS en tant que Courtier en financement, Niveau 1, sous le numéro 14001345.Agence Maisons France Confort de Bonchamp-lès-Laval (53960)
- Téléphone :
- 02 43 67 00 13
- Adressse :
- 1000, Boulevard des Grands Bouessays
53960 Bonchamp-lès-Laval, France
