Maison neuve à
Sourdun
(77171) Référence :
CY2436374_1
Prix du projet : Maison avec Terrain
prix 217 000 €
- 5 pièces
- 3 chambres
- Surface maison 90 m2
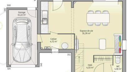
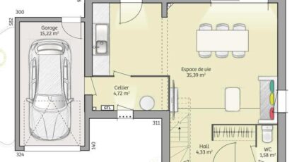
Maison de 5 pièces (90 m²) en vente à Sourdun
MAISON 5 PIÈCES NEUVE
À vendre : à quelques minutes du Transilien P (gare de Provins, 1 h de Paris), découvrez à Sourdun (77171), cette maison de 5 pièces de 90 m² et de 503 m² de terrain. Elle est composée de trois chambres, d'une cuisine et d'une salle de bains.
Cette maison compte 2 niveaux. Elle est neuve.
Une école primaire est implantée dans le quartier. Niveau transports en commun, il y a quatre gares à moins de 10 minutes en voiture. On trouve un tennis, une boulangerie, un commerce, un bureau de poste et une épicerie dans les environs.
Elle est à vendre pour la somme de 217 000 €.
N'hésitez pas à prendre contact avec Cedric YAHIAOUI (06-66-57-00-63) pour obtenir de plus amples informations sur cette maison ou sur les modalités de vente.
Annonce proposée par un Agent Commercial Partenaire.
Mentions légales
Terrain proposé par un partenaire foncier selon disponibilités et autorisation de publicité au prix de 57 000 €. Hors droit d'enregistrement et frais de notaire. Terrain + Maison proposés au prix de 217 000 € (Hors branchements et raccordements, papiers peints, peintures, revêtement de sol dans les chambres. Tarif modifiable sans préavis). Etiquette énergie : A. Différents modèles disponibles pour ce terrain. Assurances et garanties du constructeur (RC professionnelle, décennale, dommage ouvrage, garantie de remboursement de l'acompte, livraison à prix et délai convenu) : https://www.maisons-france-confort.fr/mentions-legales/. HEXAOM Services est enregistré auprès de l'ORIAS en tant que Courtier en financement, Niveau 1, sous le numéro 14001345.Agence Maisons France Confort de Magny-le-Hongre (77700)
- Téléphone :
- 01 84 80 92 96
- Adressse :
- 11 rue de Courtalin
77700 Magny-le-Hongre, France
