Maison neuve à
Soustons (40140) Référence : JM2299343_1

Prix du projet : Maison avec Terrain

prix 750 000 €

  • 4 pièces
  • 3 chambres
  • Surface maison 171 m2

Dans un cadre agréable à Souston , Couleur Villas vous propose ce projet de maison contemporaine r, alliant style, volume et prestations haut de gamme.

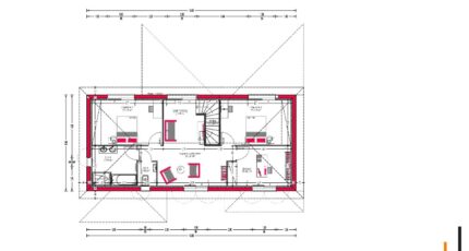
Cette maison de 171 m² habitables s'organise sur deux niveaux. À l'étage, deux chambres lumineuses, un bureau, une grande salle de bain et un palier central complètent cet espace nuit.

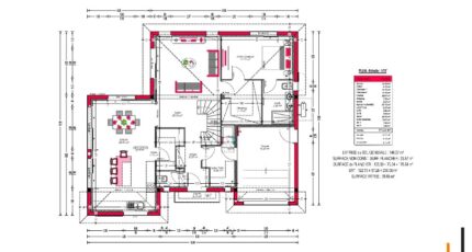
Au rez-de-chaussée, on retrouve une grandes pièces à vivre ainsi qu'une suite parentale confortable, idéale pour accueillir famille ou invités.

L'ensemble est baigné de lumière, ouvert sur l'extérieur, et construit avec des matériaux de qualité.

Ce projet offre 3 chambres, des prestations complètes et un fort potentiel familial ou secondaire.

contact M Menargues Jonathan O778240575 pour toute question sur cette annonce ou sur les démarches à suivre.

Terrain proposé par un partenaire foncier selon disponibilité dans le cadre d'un projet de construction avec Couleur Villas. Les descriptions, photographies, surfaces et prix illustrant l'annonce sont fournies à titre indicatif et ne sont pas contractuels. Non soumis au DPE. Différents modèles disponibles.

Mentions légales

Terrain proposé par un partenaire foncier selon disponibilité dans le cadre d’un projet de construction avec Couleur Villas. Les descriptions, photographies, surfaces et prix illustrant l’annonce sont fournies à titre indicatif et ne sont pas contractuels. Non soumis au DPE. Différents modèles disponibles.

Contactez l'agence de Labenne

05 24 33 03 87

    * Champs obligatoires

    Vos informations sont traitées par HEXAOM et transmises à un conseiller commercial qui vous contactera afin de répondre à votre demande. Les plans et images présentés sur notre site sont la propriété d’HEXAOM et ne peuvent pas être reproduits sans son accord. Pour retrouver notre politique de protection des données personnelles et exercer vos droits conformément à la « loi informatique et liberté » cliquez-ici.