Maison neuve à
Subles
(14400) Référence :
JS2322042_5
Prix du projet : Maison avec Terrain
prix 256 000 €
- 7 pièces
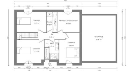
- 5 chambres
- Surface maison 120 m2
VENTE d'une maison de 7 pièces (120 m²) à Bayeux
PROCHE DE CAEN - MAISON 7 PIÈCES NEUVE
En vente : à 9 km de la Manche et à deux pas de Caen, Maisons France Confort Bayeux vous présente cette maison de 7 pièces de 120 m² et de 303 m² de terrain à Bayeux (14400).
Cette maison possède 2 niveaux. Elle se divise en cinq chambres, une cuisine et deux salles de bains. Cette maison est neuve.
Des établissements scolaires de tous niveaux (de la maternelle au lycée) sont implantés à moins de 10 minutes à pied, tout comme une structure d'accueil pour la petite enfance. Côté transports, on trouve la gare Bayeux à quelques pas du bien. Il y a un accès à la nationale N13 à 3 km. Il y a une bibliothèque, des commerces, des boulangeries, un supermarché, un bureau de poste et une supérette à quelques minutes de la maison. 2 marchés animent le quartier.
Son prix de vente est de 256 000 €.
N'hésitez pas à prendre contact avec notre agence (Emilie HUE : 06-29-81-46-66) pour toute question sur la maison, sur les modalités de vente ou sur les démarches à suivre. Maisons France Confort Bayeux est là pour vous accompagner dans tous vos projets immobiliers.
Annonce proposée par un Agent Commercial Partenaire.
Mentions légales
Terrain proposé par un partenaire foncier selon disponibilités et autorisation de publicité au prix de 56 000 €. Hors droit d'enregistrement et frais de notaire. Maison proposée, avec un contrat de construction de maison individuelle, dans le cadre de la loi du 19/12/1990, au prix de 200 000 € (Hors branchements et raccordements, papiers peints, peintures, revêtement de sol dans les chambres, qui sont chiffrés dans les travaux qui restent à charge du client. Tarif modifiable sans préavis). Étiquette énergie : A. Différents modèles disponibles pour ce terrain. Assurances et garanties du constructeur comprises (RC professionnelle, décennale, dommage ouvrage).Agence Maisons France Confort de Bayeux (14400)
- Téléphone :
- 02 31 51 20 91
- Adressse :
- 2, rue Saint Loup
14400 Bayeux, France
