Maison neuve à
Subles
(14400) Référence :
JS2322042_8
Prix du projet : Maison avec Terrain
prix 221 000 €
- 6 pièces
- 4 chambres
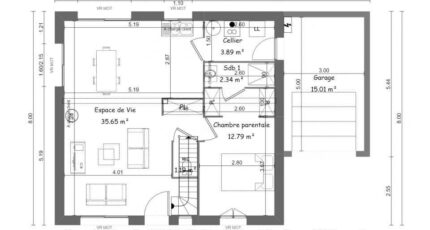
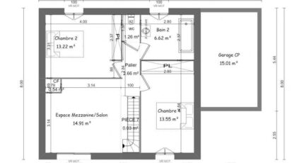
- Surface maison 110 m2
VENTE d'une maison F6 (110 m²) à Bayeux
MAISON 6 PIÈCES NEUVE - PROCHE DE CAEN
À 9 km de la Manche et à 26 km de Caen, nous sommes heureux de vous présenter cette maison de 6 pièces de 110 m² à Bayeux (14400).
Cette maison comporte 2 niveaux. Son intérieur offre quatre chambres, une cuisine et deux salles de bains. Cette maison est neuve.
Le terrain de la propriété est de 303 m².
Tous les types d'établissements scolaires (de la maternelle au lycée) sont implantés à moins de 10 minutes à pied, tout comme une crèche. Niveau transports, on trouve la gare Bayeux juste à côté. Il y a un accès à la nationale N13 à 3 km. Il y a une bibliothèque, des commerces, des boulangeries, un supermarché, trois épiceries et une supérette à proximité de la maison. 2 marchés animent le quartier.
Elle est à vendre pour la somme de 221 000 €.
Contactez notre agence (HUE Emilie : 06-29-81-46-66) pour tout renseignement sur la propriété. Concrétisez vos projets immobiliers avec Maisons France Confort Bayeux.
Annonce proposée par un Agent Commercial Partenaire.
Mentions légales
Terrain proposé par un partenaire foncier selon disponibilités et autorisation de publicité au prix de 56 000 €. Hors droit d'enregistrement et frais de notaire. Maison proposée, avec un contrat de construction de maison individuelle, dans le cadre de la loi du 19/12/1990, au prix de 165 000 € (Hors branchements et raccordements, papiers peints, peintures, revêtement de sol dans les chambres, qui sont chiffrés dans les travaux qui restent à charge du client. Tarif modifiable sans préavis). Étiquette énergie : A. Différents modèles disponibles pour ce terrain. Assurances et garanties du constructeur comprises (RC professionnelle, décennale, dommage ouvrage).Agence Maisons France Confort de Bayeux (14400)
- Téléphone :
- 02 31 51 20 91
- Adressse :
- 2, rue Saint Loup
14400 Bayeux, France
