Maison neuve à
Noiseau
(94880) Référence :
DT2452688_1
Prix du projet : Maison avec Terrain
prix 655 780 €
- 6 pièces
- 5 chambres
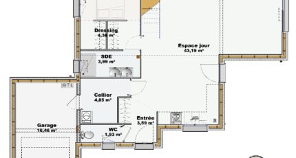
- Surface maison 114 m2
VENTE d'une maison de 6 pièces (114 m²) à Sucy-en-Brie
QUARTIER RECHERCHÉ - MAISON 6 PIÈCES NEUVE
À quelques minutes de la station Sucy-Bonneuil (Paris à 20 min par le RER A), Maisons France Confort La Queue-en-Brie vous propose en vente, dans un quartier recherché de Sucy-en-Brie (94880), cette maison de 6 pièces de 114 m². Elle se divise en cinq chambres, une cuisine et deux salles de bains.
Le terrain de la propriété est de 569 m².
Cette maison comporte 2 niveaux. Elle est neuve.
Cette maison se trouve dans un secteur convoité. Il y a l'École Élémentaire Jean Jaurès et l'École Maternelle Albert Camus à moins de 10 minutes à pied. Côté transports, on trouve le RER A, E et D ainsi que 14 gares à moins de 10 minutes en voiture. Il y a une bibliothèque, un tennis, des commerces et une épicerie à proximité de la maison.
Son prix de vente est de 655 780 €.
N'hésitez pas à prendre contact avec notre agence (TCHICAYA Dominique : 06-09-56-90-54) pour toute information sur la maison. Maisons France Confort La Queue-en-Brie vous accompagne dans tous vos projets immobiliers et à toutes les étapes de l'achat.
Mentions légales
Terrain proposé par un partenaire foncier selon disponibilités et autorisation de publicité au prix de 295 000 €. Hors droit d'enregistrement et frais de notaire. Terrain + Maison proposés au prix de 655 780 € (Hors branchements et raccordements, papiers peints, peintures, revêtement de sol dans les chambres. Tarif modifiable sans préavis). Etiquette énergie : A. Différents modèles disponibles pour ce terrain. Assurances et garanties du constructeur (RC professionnelle, décennale, dommage ouvrage, garantie de remboursement de l'acompte, livraison à prix et délai convenu) : https://www.maisons-france-confort.fr/mentions-legales/. HEXAOM Services est enregistré auprès de l'ORIAS en tant que Courtier en financement, Niveau 1, sous le numéro 14001345.Agence Maisons France Confort de La Queue-en-Brie (94510)
- Téléphone :
- 01 45 76 78 82
- Adressse :
- 8 rue du Général de Gaulle
94510 La Queue-en-Brie, France
