Maison neuve à
Suippes
(51600) Référence :
NG2296332_17
Prix du projet : Maison avec Terrain
prix 231 000 €
- 5 pièces
- 3 chambres
- Surface maison 90 m2
Maison neuve de 90m2 avec 3 chambres à vendre à Suippes, construction avec des matériaux de qualité (ossature en brique) répondant aux dernières normes RE2020.
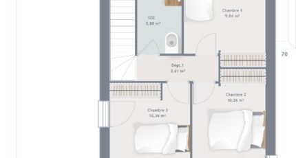
Le modèle présenté est Eco Concept 90 R+1 GI. Des lignes très design pour cette maison qui se compose de 3 chambres avec placards, un espace de vie ouvert sur la cuisine, une salle de bain, deux WC (dont un au rez-de-chaussée), un cellier et un garage.
La construction traditionnelle aux normes RE2020 de la maison est réalisée en brique et l'ensemble des matériaux utilisés sont de qualité afin de vous assurer un investissement durable.
Terrain constructible de 400m2 entièrement viabilisé à Suippes parfaitement plat et idéalement situé au calme et proche de toutes les commodités.
Suippes est une commune recherchée pour son axe direct, ses commodités (écoles, commerces et gare sur place) et sa proximité avec Châlons en Champagne, Mourmelon le Grand, Mourmelon le Petit, Livry-Louvercy et Reims.
Pour plus de renseignements vous pouvez me contacter , Nicolas GUILLAUME de l'agence Maisons France Confort de Cormontreuil au 07.77.79.23.59
Mentions légales
Terrain proposé par un partenaire foncier selon disponibilités et autorisation de publicité au prix de 20 000 €. Hors droit d'enregistrement et frais de notaire. Maison proposée, avec un contrat de construction de maison individuelle, dans le cadre de la loi du 19/12/1990, au prix de 211 000 € (Hors branchements et raccordements, papiers peints, peintures, revêtement de sol dans les chambres, qui sont chiffrés dans les travaux qui restent à charge du client. Tarif modifiable sans préavis). Étiquette énergie : A. Différents modèles disponibles pour ce terrain. Assurances et garanties du constructeur comprises (RC professionnelle, décennale, dommage ouvrage).Agence Maisons France Confort de Cormontreuil (51350)
- Téléphone :
- 03 26 46 40 50
- Adressse :
- 8 rue des rémouleurs
51350 Cormontreuil, France
