Maison neuve à
Sully
(14400) Référence :
JS2322040_5
Prix du projet : Maison avec Terrain
prix 256 000 €
- 7 pièces
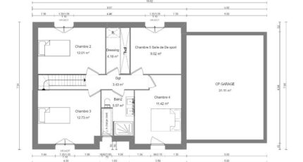
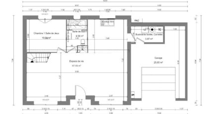
- 5 chambres
- Surface maison 120 m2
VENTE : maison de 7 pièces (120 m²) à Bayeux
PROCHE DE CAEN - MAISON 7 PIÈCES NEUVE
En vente à 9 km de la Manche et à quelques kilomètres de Caen, Maisons France Confort Bayeux vous propose à Bayeux (14400), cette maison de 7 pièces de 120 m² et de 301 m² de terrain. Elle est composée de cinq chambres, d'une cuisine et de deux salles de bains.
C'est une maison de 2 niveaux. Elle est neuve.
Il y a tous les types d'écoles (de la maternelle au lycée) à moins de 10 minutes à pied, tout comme une structure d'accueil pour les enfants en bas âge. Niveau transports en commun, on trouve la gare Bayeux à proximité. La nationale N13 est accessible à 3 km. Il y a une bibliothèque, des commerces, des boulangeries, un supermarché, un bureau de poste et des boucheries-charcuteries dans les environs. Enfin, 2 marchés animent les environs.
Elle est proposée à l'achat pour 256 000 €.
Contactez Emilie HUE (06-29-81-46-66) pour plus de renseignements sur cette maison ou sur les démarches à suivre.
Annonce proposée par un Agent Commercial Partenaire.
Mentions légales
Terrain proposé par un partenaire foncier selon disponibilités et autorisation de publicité au prix de 56 000 €. Hors droit d'enregistrement et frais de notaire. Maison proposée, avec un contrat de construction de maison individuelle, dans le cadre de la loi du 19/12/1990, au prix de 200 000 € (Hors branchements et raccordements, papiers peints, peintures, revêtement de sol dans les chambres, qui sont chiffrés dans les travaux qui restent à charge du client. Tarif modifiable sans préavis). Étiquette énergie : A. Différents modèles disponibles pour ce terrain. Assurances et garanties du constructeur comprises (RC professionnelle, décennale, dommage ouvrage).Agence Maisons France Confort de Bayeux (14400)
- Téléphone :
- 02 31 51 20 91
- Adressse :
- 2, rue Saint Loup
14400 Bayeux, France
