Maison neuve à
Taponas
(69220) Référence :
KS2441165_4
Prix du projet : Maison avec Terrain
prix 277 000 €
- 4 pièces
- 4 chambres
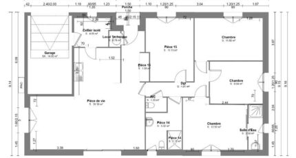
- Surface maison 104 m2
À Taponas - Maison neuve de 104 m² de plain-pied avec jardin
Prix de vente : 277 000 €
À 16 km de Villefranche-sur-Saône
Dans un secteur calme et résidentiel de Taponas (69220), découvrez cette maison neuve de plain-pied de 104 m² habitables sur un terrain de 350 m². Une opportunité rare alliant confort, fonctionnalité et qualité de vie à proximité de toutes les commodités.
Une maison moderne et bien agencée
Surface habitable généreuse de 104 m²
4 chambres, idéales pour une famille
2 salles de bains pour plus de confort
Une cuisine ouverte à personnaliser selon vos envies
Terrain facile à entretenir, parfait pour profiter d'un espace extérieur privatif
Un environnement pratique et bien desservi
École primaire Jean-Baptiste Saint Genis à moins de 10 minutes à pied
Gares de Belleville-sur-Saône, Romanèche-Thorins et Saint-Georges-de-Reneins accessibles en moins de 10 minutes en voiture
Accès rapide à l'autoroute A6, à seulement 3 km
Un projet idéal pour vivre en famille dans un cadre paisible tout en restant proche des grands axes et des services.
Pour plus d'informations ou organiser une visite, contactez :
Kevin SAOUTHI - 04 78 40 45 55
📍 Maisons France Confort - Saint-Priest
Réalisez votre projet immobilier avec un partenaire de confiance, à vos côtés à chaque étape.
Mentions légales
Terrain proposé par un partenaire foncier selon disponibilités et autorisation de publicité au prix de 100 000 €. Hors droit d'enregistrement et frais de notaire. Terrain + Maison proposés au prix de 277 000 € (Hors branchements et raccordements, papiers peints, peintures, revêtement de sol dans les chambres. Tarif modifiable sans préavis). Etiquette énergie : A. Différents modèles disponibles pour ce terrain. Assurances et garanties du constructeur (RC professionnelle, décennale, dommage ouvrage, garantie de remboursement de l'acompte, livraison à prix et délai convenu) : https://www.maisons-france-confort.fr/mentions-legales/. HEXAOM Services est enregistré auprès de l'ORIAS en tant que Courtier en financement, Niveau 1, sous le numéro 14001345.Agence Maisons France Confort de Saint-Priest (69800)
- Téléphone :
- 04 78 40 45 55
- Adressse :
- Cité de l'Environnement
69800 Saint-Priest, France
