Maison neuve à
Targon
(33760) Référence :
DC2474754_1
Prix du projet : Maison avec Terrain
prix 228 690 €
- 4 pièces
- 3 chambres
- Surface maison 100 m2
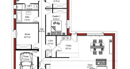
Maison de 4 pièces (100 m²) à vendre à Targon
IDÉALEMENT SITUÉE - MAISON 4 PIÈCES NEUVE
En vente à 27 km de Talence, idéalement située dans Targon (33760), venez découvrir cette maison de 4 pièces de plain-pied de 100 m². Conçue de plain-pied, elle dispose de trois chambres, d'une cuisine et d'une salle de bains.
Le terrain du bien est de 727 m².
La maison est neuve.
La maison se trouve dans un quartier prisé. L'École Primaire Jules Ferry est implantée à moins de 10 minutes à pied. L'autoroute A62 et la nationale N89 sont accessibles à moins de 17 km. On trouve une bibliothèque, un tennis, un commerce, une boulangerie, un supermarché et un bureau de poste à quelques minutes.
Elle est à vendre pour la somme de 228 690 €.
Prenez contact avec notre agence (David CAZAUBON : 06-11-78-42-56) pour plus d'informations sur la maison, sur les démarches à suivre ou sur les modalités de vente. Donnez vie à vos projets immobiliers avec Batisoft Bordeaux.
Mentions légales
Idée de réalisation en modèle prêt à décorer sur l’un de nos terrains partenaires, sous réserve de disponibilités. Voir détails en agence.Agence Batisoft de Bordeaux (33000)
- Téléphone :
- 05 35 37 13 70
- Adressse :
- Village Homexpo - Parc des expositions
33000 Bordeaux, France
