Maison neuve à
Taverny (95150) Référence : SL1433233_4

Prix du projet : Maison avec Terrain

prix 615 000 €

  • 5 pièces
  • 4 chambres
  • Surface maison 140 m2

Maisons Berval vous propose un projet de construction sur un terrain dans la commune de Taverny. Ce terrain de 510 m2 vous séduira à coup sûr.
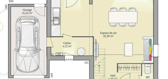
Cette maison en R+1 vous offre au rez-de-chaussée un espace salon/séjour et cuisine ouverte, un bureau ainsi qu'un cellier.
A l'étage, la Trocadéro 140 vous offre une salle de bains, 3 chambres ainsi qu'une suite parentale avec salle d'eau.
Le modèle est totalement adaptable à vos envies et besoins et personnalisable grâce à de nombreuses options de finition. Nous consulter.
Le prix affiché comprend le coût du terrain et de la construction hors frais de notaire et taxes.
Pour tous renseignements, veuillez contacter Monsieur Stéphane LEPAGE au 0683911324
Maisons Berval est certifiée NF Habitat HQE.

Mentions légales

Les annonces de terrains constructibles sont sélectionnées auprès de nos partenaires fonciers. Ces derniers sont soit des professionnels dûment habilités à la transaction immobilière, soit des particuliers. Terrains, selon disponibilité, pour la construction de maisons neuves, avec un contrat de construction de maison individuelle, dans le cadre de la loi du 19/12/1990. Les terrains sélectionnés sont disponibles à la date de la première parution de l’annonce. En aucun cas Maisons Berval ou ses collaborateurs ne sont propriétaires des terrains , ne jouent un rôle d’intermédiation ou de négociation sur la transaction et ne participent à la vente. Prix indiqués par nos partenaires fonciers.