Maison neuve à
Técou (81600) Référence : GO2485262_11

Prix du projet : Maison avec Terrain

prix 318 990 €

  • 4 pièces
  • 3 chambres
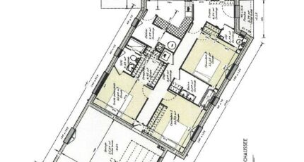
  • Surface maison 125 m2

Coup de coeur : Villa de plain-pied T4 (125 m²) à Técou
Le confort d'une vie de plain-pied dans un cadre verdoyant, à seulement 15 minutes d'Albi.

L'agence Maisons France Confort Albi vous invite à découvrir ce projet de construction rare à Técou (81600). Une maison contemporaine de 125 m², pensée pour une circulation fluide et une luminosité maximale, sur un beau terrain de 845 m².

Les prestations de votre futur foyer :
Architecture de Plain-Pied : Un agencement pratique et moderne, sans aucune marche, pour un confort de vie inégalé.

Espace Nuit : 3 belles chambres, offrant calme et intimité.

Volumes & Lumière : Une vaste pièce de vie avec cuisine ouverte, idéale pour vos moments en famille.

Sanitaires : 2 salles de bains.

Extérieur : Un jardin spacieux de 845 m², parfait pour créer votre espace détente, une terrasse ou un jardin potager.

Une situation idéale :
Vie de famille : École primaire à deux pas pour un quotidien facilité.

Connectivité : À seulement 5 km de l'autoroute A68 (Toulouse/Albi).

Prix de vente : 318 990 €

Pour de plus amples renseignements prenez rendez-vous avec votre Agence Maison France Confort ALBI au 05 63 43 56 40

Annonce proposée par un Agent Commercial Partenaire.

Mentions légales

Terrain proposé par un partenaire foncier selon disponibilités et autorisation de publicité au prix de 83 000 €. Hors droit d'enregistrement et frais de notaire. Terrain + Maison proposés au prix de 318 990 € (Hors branchements et raccordements, papiers peints, peintures, revêtement de sol dans les chambres. Tarif modifiable sans préavis). Etiquette énergie : A. Différents modèles disponibles pour ce terrain. Assurances et garanties du constructeur (RC professionnelle, décennale, dommage ouvrage, garantie de remboursement de l'acompte, livraison à prix et délai convenu) : https://www.maisons-france-confort.fr/mentions-legales/. HEXAOM Services est enregistré auprès de l'ORIAS en tant que Courtier en financement, Niveau 1, sous le numéro 14001345.

Contactez l'agence de Albi

05 63 43 56 40

    * Champs obligatoires

    Vos informations sont traitées par HEXAOM et transmises à un conseiller commercial qui vous contactera afin de répondre à votre demande. Les plans et images présentés sur notre site sont la propriété d’HEXAOM et ne peuvent pas être reproduits sans son accord. Pour retrouver notre politique de protection des données personnelles et exercer vos droits conformément à la « loi informatique et liberté » cliquez-ici.