Maison neuve à
Teuillac
(33710) Référence :
PC2321528_1
Prix du projet : Maison avec Terrain
prix 212 900 €
- 4 pièces
- 3 chambres
- Surface maison 85 m2
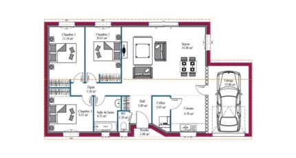
VENTE : maison de 4 pièces (85 m²) à Teuillac
PROCHE DE BORDEAUX - MAISON 4 PIÈCES NEUVE
En vente : localisée à 8 km de la côte atlantique et à quelques kilomètres de Bordeaux, à Teuillac (33710), nous vous proposons cette maison de 4 pièces de plain-pied de 85 m². Elle comporte trois chambres, une cuisine et une salle de bains.
Le terrain de cette maison est de 720 m².
La maison est neuve.
L'École Primaire Rachel Taytel est implantée à moins de 10 minutes à pied. L'autoroute A10 et la nationale N10 sont accessibles à moins de 13 km. Il y a une bibliothèque dans les environs.
OFFRE MAISON+TERRAIN +Frais de Notaire 212 900€
Contactez Patrick à notre agence : o6-18-76-44-67 pour toute question sur la maison, sur les modalités de vente et sur les démarches à suivre.
Agence Maisons de la Côte Atlantique de Artigues-près-Bordeaux (33370)
- Téléphone :
- 05 56 33 23 32
- Adressse :
- 110, Avenue du Peyrou
33370 Artigues-près-Bordeaux, France
