Maison neuve à
Thaon
(14610) Référence :
SC2396019_1
Prix du projet : Maison avec Terrain
prix 279 114 €
- 6 pièces
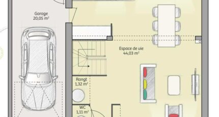
- 4 chambres
- Surface maison 91 m2
Thaon : maison de 6 pièces (91 m²) à vendre
IDÉALEMENT SITUÉE - MAISON 6 PIÈCES NEUVE
À vendre : à 10 km de la Manche et à quelques kilomètres de Caen, Maisons France Confort Caen vous propose, idéalement située dans Thaon (14610), cette maison de 6 pièces de 91 m² et de 433 m² de terrain. Son intérieur compte quatre chambres, une cuisine et une salle de bains.
C'est une maison de 2 niveaux. Elle est neuve.
Ce bien se trouve dans un quartier recherché. Il y a l'École Primaire Yvonne Guégan à moins de 10 minutes à pied. Côté transports en commun, on trouve les gares Saint-Germain-en-Laye Bel-Air-Fourqueux T13 et Bretteville-Norrey à moins de 10 minutes en voiture. Les nationales N13 et N814 sont accessibles à moins de 8 km. Il y a un tennis, une boulangerie et une épicerie dans les environs.
Il est proposé à l'achat pour 279 114 €.
Contactez notre agence (Séverine CHATARD : 06-29-77-10-07) pour plus d'informations sur la maison. Donnez vie à vos projets immobiliers avec Maisons France Confort Caen.
Mentions légales
Terrain proposé par un partenaire foncier selon disponibilités et autorisation de publicité au prix de 102 000 €. Hors droit d'enregistrement et frais de notaire. Terrain + Maison proposés au prix de 279 114 € (Hors branchements et raccordements, papiers peints, peintures, revêtement de sol dans les chambres. Tarif modifiable sans préavis). Etiquette énergie : A. Différents modèles disponibles pour ce terrain. Assurances et garanties du constructeur (RC professionnelle, décennale, dommage ouvrage, garantie de remboursement de l'acompte, livraison à prix et délai convenu) : https://www.maisons-france-confort.fr/mentions-legales/. HEXAOM Services est enregistré auprès de l'ORIAS en tant que Courtier en financement, Niveau 1, sous le numéro 14001345.Agence Maisons France Confort de Caen (14000)
- Téléphone :
- 02 31 86 12 21
- Adressse :
- 11 place de la Résistance
14000 Caen, France
