Maison neuve à
Thélus (62580) Référence : AC2401021_4

Prix du projet : Maison avec Terrain

prix 432 693 €

  • 6 pièces
  • 5 chambres
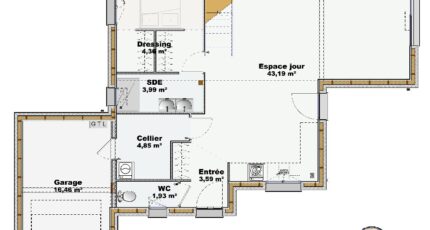
  • Surface maison 114 m2

VENTE d'une maison T6 (114 m²) à Thélus
EMPLACEMENT PRIVILÉGIÉ - MAISON 6 PIÈCES NEUVE
En vente : proche de la Belgique et à deux pas de Douai, bénéficiant d'un emplacement privilégié dans Thélus (62580), nous vous proposons cette maison de 6 pièces de 114 m² et de 576 m² de terrain. Elle inclut cinq chambres, une cuisine et deux salles de bains.
Cette maison possède 2 niveaux. Elle est neuve.
Elle se trouve dans un quartier recherché. Il y a l'École Primaire des Coquelicots à moins de 10 minutes à pied. Niveau transports en commun, on trouve 13 gares à moins de 10 minutes en voiture. Des autoroutes et les nationales N17 et N25 sont accessibles à moins de 10 km. Il y a une bibliothèque dans les environs.
Son prix de vente est de 432 693 €.
Contactez Arnaud CARPENTIER (06-84-42-52-50) pour obtenir de plus amples renseignements sur la maison ou sur les démarches à suivre. Maisons France Confort Arras vous accompagne dans tous vos projets immobiliers et dans toutes vos démarches.

Mentions légales

Terrain proposé par un partenaire foncier selon disponibilités et autorisation de publicité au prix de 106 900 €. Hors droit d'enregistrement et frais de notaire. Terrain + Maison proposés au prix de 432 693 € (Hors branchements et raccordements, papiers peints, peintures, revêtement de sol dans les chambres. Tarif modifiable sans préavis). Etiquette énergie : A. Différents modèles disponibles pour ce terrain. Assurances et garanties du constructeur (RC professionnelle, décennale, dommage ouvrage, garantie de remboursement de l'acompte, livraison à prix et délai convenu) : https://www.maisons-france-confort.fr/mentions-legales/. HEXAOM Services est enregistré auprès de l'ORIAS en tant que Courtier en financement, Niveau 1, sous le numéro 14001345.

Contactez l'agence de Arras

03 21 60 95 24

    * Champs obligatoires

    Vos informations sont traitées par HEXAOM et transmises à un conseiller commercial qui vous contactera afin de répondre à votre demande. Les plans et images présentés sur notre site sont la propriété d’HEXAOM et ne peuvent pas être reproduits sans son accord. Pour retrouver notre politique de protection des données personnelles et exercer vos droits conformément à la « loi informatique et liberté » cliquez-ici.