Maison neuve à
Thénac
(17460) Référence :
LR2488276_5
Prix du projet : Maison avec Terrain
prix 203 000 €
- 5 pièces
- 3 chambres
- Surface maison 90 m2
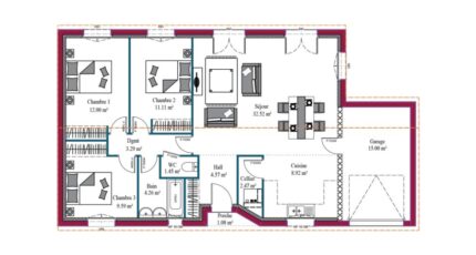
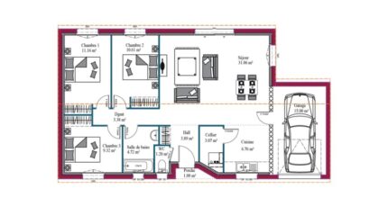
Maison de 5 pièces (90 m²) en vente à Thénac
QUARTIER RECHERCHÉ - MAISON 5 PIÈCES NEUVE
À vendre : à 26 km de la côte atlantique et à quelques kilomètres de Saintes, Maisons de la Côte Atlantique Saintes vous présente cette maison de 5 pièces de plain-pied de 90 m² et de 551 m² de terrain située dans un quartier convoité de Thénac (17460). Conçue de plain-pied, elle compte trois chambres, une cuisine et une salle de bains.
La maison est neuve.
Ce bien se situe dans un secteur prisé. Il y a l'École Primaire de Thénac à moins de 10 minutes à pied. Côté transports, on trouve la gare Saintes à moins de 10 minutes en voiture. L'autoroute A10 et les nationales N137, N141 et N150 sont accessibles à moins de 10 km. Il y a une épicerie et un bureau de poste dans les environs.
Il est à vendre pour la somme de 203 000 €.
N'hésitez pas à prendre contact avec Laurent ROUMY (tél : O6-79-06-63-44) pour plus d'informations sur la maison. Maisons de la Côte Atlantique Saintes vous accompagne dans toutes vos démarches et dans tous vos projets immobiliers.
Mentions légales
Idée de réalisation en modèle prêt à décorer sur l'un de nos terrains partenaires, sous réserve de disponibilités. Voir détails en agence.Agence Maisons de la Côte Atlantique de Saintes (17100)
- Téléphone :
- 05 46 74 88 74
- Adressse :
- 5, Rue Pierre et Marie Curie
17100 Saintes, France
