Maison neuve à
Thomery
(77810) Référence :
AD2478820_2
Prix du projet : Maison avec Terrain
prix 303 000 €
- 5 pièces
- 4 chambres
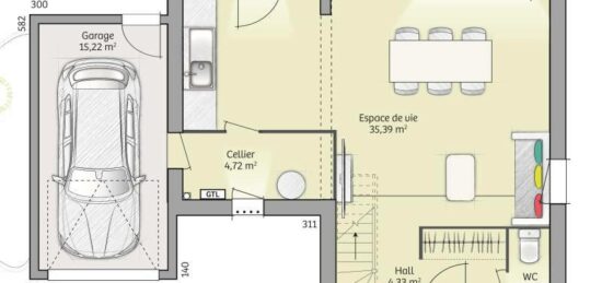
- Surface maison 101 m2
VENTE d'une maison T5 (101 m²) à Thomery
EMPLACEMENT PRIVILÉGIÉ - MAISON 5 PIÈCES NEUVE
À vendre : à proximité du Transilien R (45 min de Paris), nous vous présentons cette maison de 5 pièces de plain-pied de 101 m² et de 400 m² de terrain bénéficiant d'un emplacement privilégié dans Thomery (77810).
Son intérieur dispose de quatre chambres, d'une cuisine et d'une salle de bains. La maison est neuve.
Cette maison est située dans un secteur attractif. On trouve l'École Primaire Jacquemin et l'École Primaire Rose Charmeux à moins de 10 minutes à pied. Côté transports en commun, il y a 11 gares à moins de 10 minutes en voiture. Il y a une bibliothèque et deux tennis dans les environs.
Son prix de vente est de 303 000 €.
Contactez notre agence (DELOHEN Anne : 06-30-93-26-67) pour toute question sur la maison.
Annonce proposée par un Agent Commercial Partenaire.
Mentions légales
Terrain proposé par un partenaire foncier selon disponibilités et autorisation de publicité au prix de 115 000 €. Hors droit d'enregistrement et frais de notaire. Terrain + Maison proposés au prix de 303 000 € (Hors branchements et raccordements, papiers peints, peintures, revêtement de sol dans les chambres. Tarif modifiable sans préavis). Etiquette énergie : A. Différents modèles disponibles pour ce terrain. Assurances et garanties du constructeur (RC professionnelle, décennale, dommage ouvrage, garantie de remboursement de l'acompte, livraison à prix et délai convenu) : https://www.maisons-france-confort.fr/mentions-legales/. HEXAOM Services est enregistré auprès de l'ORIAS en tant que Courtier en financement, Niveau 1, sous le numéro 14001345.Agence Maisons France Confort de Nemours (77140)
- Téléphone :
- 01 64 28 58 32
- Adressse :
- 16 Avenue Carnot
77140 Nemours, France
